Rochegude - mas en pierre - 4 chambres, garage sur une parcelle constructible

— Rochegude 26790 —
610 000 €
219 m² / 2 470 m²
6 pièces
parkingbalcon/terrassejardinpiscine

ROCHEGUDE - Charmant village de la Drôme Provençale.
Implantée sur une parcelle constructible d'environ 2400 m², venez découvrir cet authentique Mas Provençal qui se distingue par une très belle façade en pierre. Dès votre arrivée, vous serez accueilli par une très belle arche d'époque.

Méticuleusement entretenu, ce mas offre une superficie habitable d'environ 219 m².
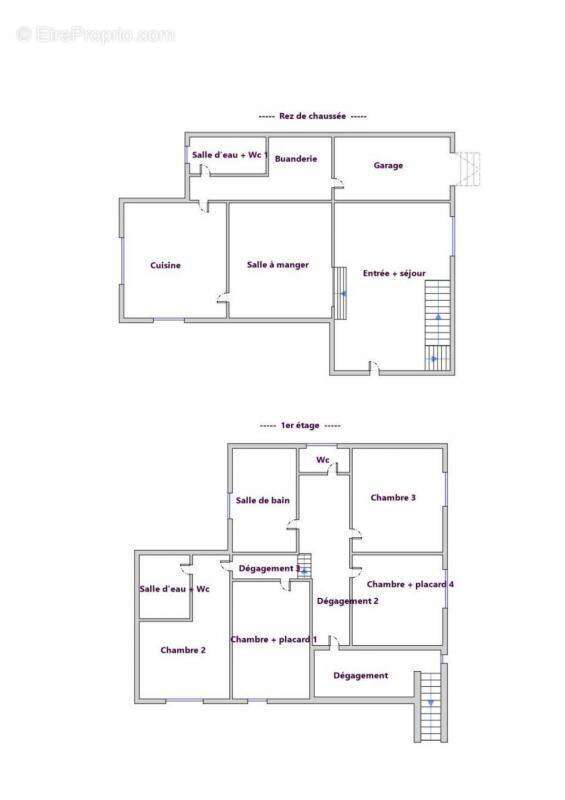
Au rez de chaussée, la terrasse donne sur une cuisine aménagée d'environ 31m² (avec four à pizza), véritable atout pour les moments conviviaux. Le séjour et le salon s'ouvrent également vers l'extérieur. Une arrière cuisine et une salle d'eau avec wc complète ce niveau.
A l'étage, l'espace nuit propose 4 chambres dont une suite parentale avec salle d'eau privative. Une salle de bains (15m² environ) et un wc indépendant viennent parfaire cet étage pensé pour le confort familial.

Ce mas a été rénové dans un souci d'isolation et de performance énergétique. Il est classé en DPE B pour un mas datant des années 1800. Fenêtre double vitrage, chauffe-eau solaire mixte, pompe à chaleur, plancher chauffant basse température, cheminée avec insert et poêle à bois. Forage, piscine hors sol en bois. Garage avec portail automatique et stationnement facile.

C'est avec plaisir que je me tiens à votre disposition pour vous présenter cette propriété alliant le charme de l'ancien et le confort moderne.
La présente annonce immobilière a été rédigée sous la responsabilité éditoriale de Mme Sandrine BRETON, agent commercial (EI enregistrée au tribunal de commerce de Avignon sous le numéro RSAC 839224607)

Les informations sur les risques auxquels ce bien est exposé sont disponibles sur le site Géorisques : https://www.georisques.gouv.fr
Référence agence : 12871 - 04
Voir plus

Référence: C3EW-T4E-31B
Honoraires à la charge du vendeur.
DPE
A
B
C
D
E
F
G
GES
A
B
C
D
E
F
G

Prêt immobilier

Vous souhaitez connaître votre capacité d’emprunt et trouver le meilleur crédit immobilier ?
Réaliser une simulation gratuite

Maison à ROCHEGUDE
Maison à ROCHEGUDE
Maison à ROCHEGUDE
Maison à ROCHEGUDE
Maison à ROCHEGUDE
Maison à ROCHEGUDE
Maison à ROCHEGUDE
Maison à ROCHEGUDE
Maison à ROCHEGUDE
Maison à ROCHEGUDE
Maison à ROCHEGUDE
Maison à ROCHEGUDE
Maison à ROCHEGUDE
Maison à ROCHEGUDE
Maison à ROCHEGUDE
Ce site est protégé par reCAPTCHA la Politique de confidentialité et les Conditions d’utilisation de Google s’appliquent.
Obtenir un prêt immobilier au meilleur taux ?

En poursuivant votre navigation sans modifier vos paramètres, vous acceptez l'utilisation de cookies susceptibles de réaliser des statistiques de visite. Cliquez ici pour plus d'informations