Maison de plain-pied à rénover de 142 m²

— Ducos 97224 —
250 000 €
142 m² / 691 m²
5 pièces
parking

vous propose ce bien :

Ducos (97224) – Maison individuelle T5 de 142 m², avec vue mer et montagne, terrain piscinable.

À vendre, maison individuelle T5 à rénover complètement située à Ducos, au cœur d'un environnement calme et campagnard tout en restant proche des commodités. Idéale pour une famille à la recherche d'espace, de praticité et d'un cadre de vie préservé, elle offre une vue dégagée sur la mer et sur les reliefs, un terrain piscinable de 691 m² et un stationnement aisé grâce à son garage qui pourrait se transformer en pièce supplémentaire.

Points forts et caractéristiques principales
- Localisation recherchée à Ducos: proximité bus, centre-ville, écoles (primaire, collège, lycée) et aéroport, avec zone artisanale/industrielle à courte distance pour faciliter le quotidien.
- Vue mer et vue montagne depuis le toit terrasse donc possibilité de construire un étage (si la structure le permet) avant de couvrir.
- Terrain piscinable de 691 m²: beau potentiel d'aménagement paysager, détente ou loisirs.
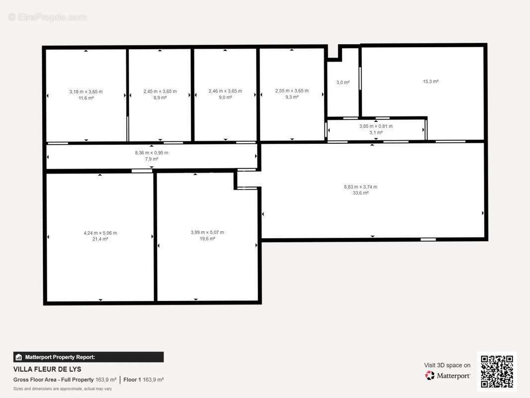
- Espaces familiaux: 5 pièces dont 4 chambres (19, 11, 9,5 et 9m²), 2 salles de bain dont une de 9 m², séjour convivial.
- Stationnement: garage principal (couvert), complété par les possibilités de stationnement extérieur plus de quatre voitures selon vos besoins.

Ce bien nécessite une rénovation complète et la réalisation d'une toiture, il peut également être divisé en deux biens mitoyens vu la disposition des pièces ce qui vous donnerait un T2 et un T4.

Informations financières
- Prix de vente: 250 000 €, honoraire d'agence inclus et à la charge du vendeur.
- Taxe foncière: 1440 €

Cette propriété combine emplacement stratégique, confort familial et fort potentiel extérieur. Contactez nous pour organiser une visite et découvrir tout le potentiel de cette maison à Ducos.

Société par Actions simplifiée INCA IMMOBILIER, agence titulaire de la carte professionnelle numéro CPI 9721 2[Coordonnées masquées]18, délivrée le 15/12/2023 par la CCI de Martinique. Immatriculée sous le numéro de SIREN 919454736 RCS de Fort-de-France.
Téléphone de contact : +596 696 88 24 48
Adresse mail de contact : [Coordonnées masquées]\nLes informations sur les risques auxquels ce bien est exposé sont disponibles sur le site Géorisques : www.georisques.gouv.fr
Voir plus

Référence: MB9649205518

Prêt immobilier

Vous souhaitez connaître votre capacité d’emprunt et trouver le meilleur crédit immobilier ?
Réaliser une simulation gratuite

Maison à DUCOS
Maison à DUCOS
Maison à DUCOS
Maison à DUCOS
Maison à DUCOS
Maison à DUCOS
Maison à DUCOS
Maison à DUCOS
Maison à DUCOS
Maison à DUCOS
Maison à DUCOS
Maison à DUCOS
Maison à DUCOS
Ce site est protégé par reCAPTCHA la Politique de confidentialité et les Conditions d’utilisation de Google s’appliquent.
Obtenir un prêt immobilier au meilleur taux ?

En poursuivant votre navigation sans modifier vos paramètres, vous acceptez l'utilisation de cookies susceptibles de réaliser des statistiques de visite. Cliquez ici pour plus d'informations