Maison à vendre 4 pièces gauchy (02)

— Gauchy 02430 —
124 200 €
90 m² / 192 m²
4 pièces
parkingjardin

A VENDRE EN EXCLUSIVITE A GAUCHY, Maison Semi Individuelle habitable de plain de 90m2 avec une Cour de 100m2

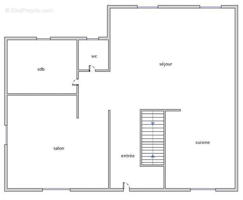
Maison composée au rez-de-chaussée d'une Entrée, Cuisine, Salle à Manger et une Pièce de 18m2 (Séjour ou Chambre), Salle de Bains avec Douche et Baignoire, WC indépendant.

A l'Etage un Palier dessert une Chambre de 17m2 avec Placards et une Pièce mansardée de 7m2 pouvant servir de Bureau, Dressing, ou Chambre bébé.

Une Cave complète ce Bien.

Maison située à proximité de l'Eglise de Gauchy, de la Pharmacie, de l'Ecole primaire, et des Transports.

Possibilité de stationner plusieurs Véhicules sur le Terrain

Chauffage gaz. Tout à l'égout. Fibre

Taxe foncière 1.055 €uros.

Environnement calme et verdoyant.

Bien rare sur le Secteur.

A visiter sans tarder.

Les honoraires d'agence sont à la charge de l'acquéreur, soit 8,00% TTC du prix hors honoraires.
Les informations sur les risques auxquels ce bien est exposé sont disponibles sur le site Géorisques : www. georisques. gouv. fr.

Réseau Immobilier CAPIFRANCE - Votre agent commercial (RSAC N°834 978 215 - Greffe de SAINT QUENTIN) Christelle VERNADET Entrepreneur Individuel [Coordonnées masquées] - Réf.928727
Voir plus

Référence: 340939761825
DPE
A
B
C
D
E
F
G
GES
A
B
C
D
E
F
G

Prêt immobilier

Vous souhaitez connaître votre capacité d’emprunt et trouver le meilleur crédit immobilier ?
Réaliser une simulation gratuite

Maison à GAUCHY
Maison à GAUCHY
Maison à GAUCHY
Maison à GAUCHY
Maison à GAUCHY
Maison à GAUCHY
Maison à GAUCHY
Maison à GAUCHY
Maison à GAUCHY
Maison à GAUCHY
Maison à GAUCHY
Maison à GAUCHY
Maison à GAUCHY
Ce site est protégé par reCAPTCHA la Politique de confidentialité et les Conditions d’utilisation de Google s’appliquent.
Obtenir un prêt immobilier au meilleur taux ?

En poursuivant votre navigation sans modifier vos paramètres, vous acceptez l'utilisation de cookies susceptibles de réaliser des statistiques de visite. Cliquez ici pour plus d'informations