Maison 3 chambres - les-sables-d'olonne

— L'ile-D'olonne 85340 —
412 500 €
90 m² / 492 m²
4 pièces
parkingbalcon/terrassejardin

Je vous propose cette agréable maison familiale de plain-pied, située dans un secteur résidentiel très calme et prisé des SABLES D'OLONNE (Lieu dit Les Vigneaux), à quelques minutes des plages, des marais salants et de la forêt d'Olonne, à proximité immédiate d'un centre commercial et des pistes cyclables.
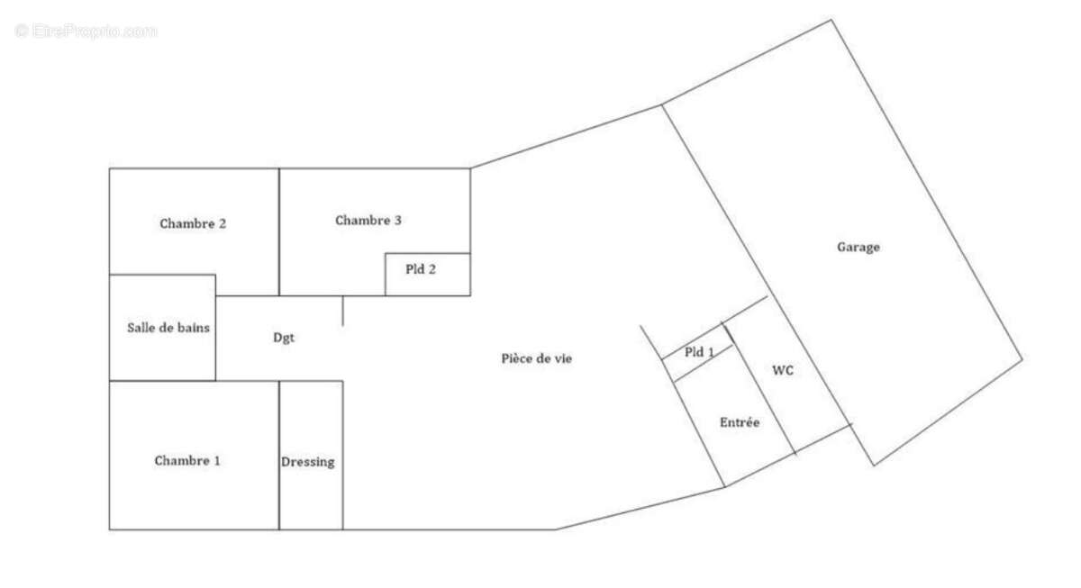
Edifiée en 2006 sur une belle parcelle clôturée de 492 m2, cette jolie demeure de 90 m2 habitables se compose d'une entrée avec vaste salon-séjour traversant lumineux, ouvert sur une cuisine aménagée avec accès sur une arrière cuisine / buanderie et sur un grand garage (22 m2 avec porte sectionnelle motorisée), d'un coin nuit avec trois chambres avec placard dont une avec un dressing, d'une salle de bains avec douche et baignoire et d'un WC indépendant avec lave-mains.
Le stationnement d'au moins deux véhicules est aisé sur le devant de la parcelle.
Deux terrasses (très bonne exposition avec l'une sur l'arrière, au calme et sans vis-à-vis accès direct cuisine) apportent charme et sérénité.
Les volets sont électriques, les fenêtres en double vitrage et son chauffage par le sol lui confère un très bon diagnostic énergétique et un grand confort au quotidien.
Ce bien vous attend !
Information : l'habitation étant quasiment non meublée et le jardin non fleuri, les neuf premières photos ont été relookées avec l'utilisation d'un logiciel 3D (suggestion d'aménagement) - aucune modification des surfaces et des ouvrants - les visuels non modifiés sont à la suite de ces premières photos. - Annonce rédigée et publiée par un Agent Mandataire -
Voir plus

Référence: 27087
Honoraires à la charge du vendeur.
Barème des honoraires
DPE
A
B
C
D
E
F
G
GES
A
B
C
D
E
F
G

Prêt immobilier

Vous souhaitez connaître votre capacité d’emprunt et trouver le meilleur crédit immobilier ?
Réaliser une simulation gratuite

Maison à L'ILE-D'OLONNE
Maison à L'ILE-D'OLONNE
Maison à L'ILE-D'OLONNE
Maison à L'ILE-D'OLONNE
Maison à L'ILE-D'OLONNE
Maison à L'ILE-D'OLONNE
Maison à L'ILE-D'OLONNE
Maison à L'ILE-D'OLONNE
Maison à L'ILE-D'OLONNE
Maison à L'ILE-D'OLONNE
Maison à L'ILE-D'OLONNE
Maison à L'ILE-D'OLONNE
Maison à L'ILE-D'OLONNE
Maison à L'ILE-D'OLONNE
Maison à L'ILE-D'OLONNE
Maison à L'ILE-D'OLONNE
Maison à L'ILE-D'OLONNE
Maison à L'ILE-D'OLONNE
Maison à L'ILE-D'OLONNE
Maison à L'ILE-D'OLONNE
Maison à L'ILE-D'OLONNE
Maison à L'ILE-D'OLONNE
Ce site est protégé par reCAPTCHA la Politique de confidentialité et les Conditions d’utilisation de Google s’appliquent.
Obtenir un prêt immobilier au meilleur taux ?

En poursuivant votre navigation sans modifier vos paramètres, vous acceptez l'utilisation de cookies susceptibles de réaliser des statistiques de visite. Cliquez ici pour plus d'informations