Bénéficiez des services de nos partenaires locaux soigneusement sélectionnés
pour vous accompagner dans votre parcours d'achat immobilier

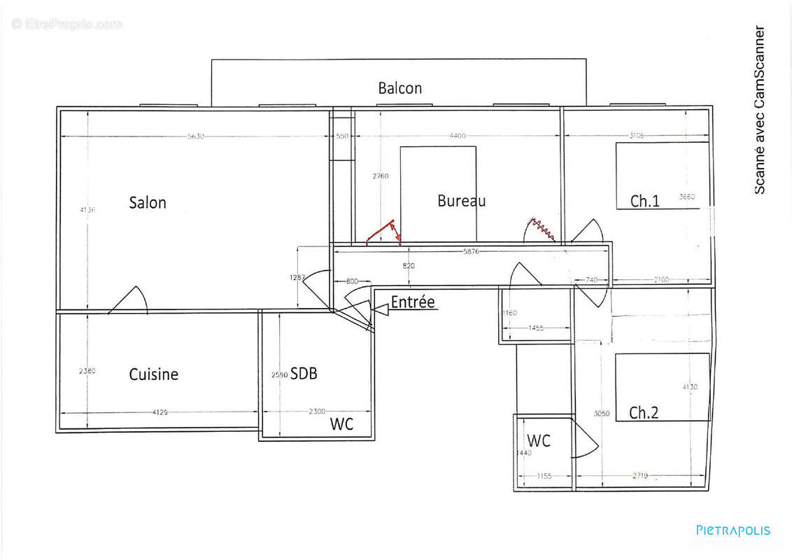
Appartement 80m² à vienne

— Vienne 38200 —
240 000 €
80 m²
4 pièces
balcon/terrasse

Nos partenaires locaux
Découvrez cet appartement T4/5 partiellement meublé, situé au coeur de Vienne. Construit en 1905 et rénové en 2016, il offre une surface habitable de 82 m², avec un séjour de 20 m² et deux chambres spacieuses. La cuisine aménagée et équipée, les ouvertures en bois et le double vitrage assurent un confort optimal. Cet appartement dispose également d'une cave de 7 m² et d'un grenier. Situé à proximité de plusieurs commodités, dont des écoles, des restaurants et des parcs, il est idéal pour une vie urbaine épanouissante. Contactez-nous pour plus d'informations.

Honoraires à la charge du vendeur. Dans une copropriété de 7 lots. Aucune procédure n'est en cours. Classe énergie E, Classe climat E Montant estimé des dépenses annuelles d'énergie pour un usage standard : entre 2190.00 € et 2990.00 € sur les années 2021, 2022 et 2023 (abonnements compris). Les informations sur les risques auxquels ce bien est exposé sont disponibles sur le site Géorisques : georisques.gouv.fr.

Votre conseiller Pietrapolis Vienne : Christel MONTAGNY
Agent commercial (Entreprise individuelle)
RSAC 485086532
RCP ACI26952
Voir plus

Référence: 309-PIETRAPOLIS
Bien en copropriété. Nombre de lots : 7.
Honoraires à la charge du vendeur.
Barème des honoraires
DPE
A
B
C
D
E
F
G
GES
A
B
C
D
E
F
G

Prêt immobilier

Vous souhaitez connaître votre capacité d’emprunt et trouver le meilleur crédit immobilier ?
Réaliser une simulation gratuite

Appartement à VIENNE
Appartement à VIENNE
Appartement à VIENNE
Appartement à VIENNE
Appartement à VIENNE
Appartement à VIENNE
Appartement à VIENNE
Appartement à VIENNE
Appartement à VIENNE
Ce site est protégé par reCAPTCHA la Politique de confidentialité et les Conditions d’utilisation de Google s’appliquent.
Obtenir un prêt immobilier au meilleur taux ?

En poursuivant votre navigation sans modifier vos paramètres, vous acceptez l'utilisation de cookies susceptibles de réaliser des statistiques de visite. Cliquez ici pour plus d'informations