Bénéficiez des services de nos partenaires locaux soigneusement sélectionnés
pour vous accompagner dans votre parcours d'achat immobilier

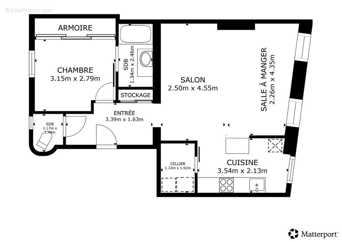
Appartement 52m² à paris 17e arrondissement

— Paris-17e 75017 —
556 500 €
52 m²
2 pièces

Nos partenaires locaux
ERA Batignolles/Guy Moquet vous propose cet appartement 2/3 pièces traversant de 52,05m² au 2ème étage d'un immeuble bien entretenu. A proximité des transports Métros Brochant (L13) et Pont Cardinet (L14). Cet appartement se compose d'une grande pièce de vie lumineuse de 21,85 m² avec cuisine semi-ouverte de 6,50M2 avec son espace buanderie, une chambre sur cour avec de grand rangements, une salle d'eau et un WC séparé.
Bon état, aucun travaux à prévoir, copropriété sans travaux et procédure.
N'attendez pas, contactez-nous dès aujourd'hui pour organiser votre visite.
Charges: 218€/mois ; taxe foncière: 991€
ERA GUY MOQUET
48, Rue Guy Môquet 75017 Paris [Coordonnées masquées] [Coordonnées masquées]
L'Etat des Risques et Pollution peut être consulté sur https://www.georisques.gouv.fr
Voir plus

Référence: 4351
DPE
A
B
C
D
E
F
G
GES
A
B
C
D
E
F
G

Prêt immobilier

Vous souhaitez connaître votre capacité d’emprunt et trouver le meilleur crédit immobilier ?
Réaliser une simulation gratuite

Appartement à PARIS-17E
Appartement à PARIS-17E
Appartement à PARIS-17E
Appartement à PARIS-17E
Appartement à PARIS-17E
Appartement à PARIS-17E
Appartement à PARIS-17E
Appartement à PARIS-17E
Appartement à PARIS-17E
Appartement à PARIS-17E
Appartement à PARIS-17E
Appartement à PARIS-17E
Appartement à PARIS-17E
Appartement à PARIS-17E
Appartement à PARIS-17E
Appartement à PARIS-17E
Ce site est protégé par reCAPTCHA la Politique de confidentialité et les Conditions d’utilisation de Google s’appliquent.
Obtenir un prêt immobilier au meilleur taux ?

En poursuivant votre navigation sans modifier vos paramètres, vous acceptez l'utilisation de cookies susceptibles de réaliser des statistiques de visite. Cliquez ici pour plus d'informations