Bénéficiez des services de nos partenaires locaux soigneusement sélectionnés
pour vous accompagner dans votre parcours d'achat immobilier

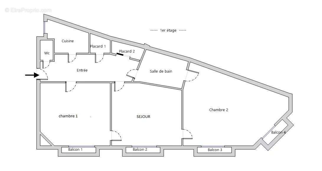
Volontaires, 3p de 60m2, 1er étage ascenseur

— Paris-15e 75015 —
525 000 €
60 m²
3 pièces
ascenseur

Nos partenaires locaux
Paris 15ème, métro Volontaires. Nous vous proposons ce bel appartement 3 pièces de 59,93 m² carrez situé au 1er étage avec ascenseur, dans un bel immeuble ancien. Il est composé d'une entrée desservant 3 pièces (séjour et deux chambres ou séjour, salle à manger et chambre), d'une cuisine indépendante, d'une salle de bain, d'un WC indépendant. Faibles charges. Chauffage individuel gaz. Pas de procédures en cours. Copropriété de 16 lots.

Référence: 86207372
DPE
A
B
C
D
E
F
G
GES
A
B
C
D
E
F
G

Prêt immobilier

Vous souhaitez connaître votre capacité d’emprunt et trouver le meilleur crédit immobilier ?
Réaliser une simulation gratuite

Appartement à PARIS-15E
Appartement à PARIS-15E
Appartement à PARIS-15E
Appartement à PARIS-15E
Appartement à PARIS-15E
Appartement à PARIS-15E
Appartement à PARIS-15E
Appartement à PARIS-15E
Appartement à PARIS-15E
Appartement à PARIS-15E
Appartement à PARIS-15E
Appartement à PARIS-15E
Appartement à PARIS-15E
Ce site est protégé par reCAPTCHA la Politique de confidentialité et les Conditions d’utilisation de Google s’appliquent.
Obtenir un prêt immobilier au meilleur taux ?

En poursuivant votre navigation sans modifier vos paramètres, vous acceptez l'utilisation de cookies susceptibles de réaliser des statistiques de visite. Cliquez ici pour plus d'informations