Bénéficiez des services de nos partenaires locaux soigneusement sélectionnés
pour vous accompagner dans votre parcours d'achat immobilier

Toulon est pont de suve - limite la garde superbe t2 avant dernier étage avec terrasse sud tout confort et moderne (ascenseur, d

— La Garde 83130 —
208 000 €
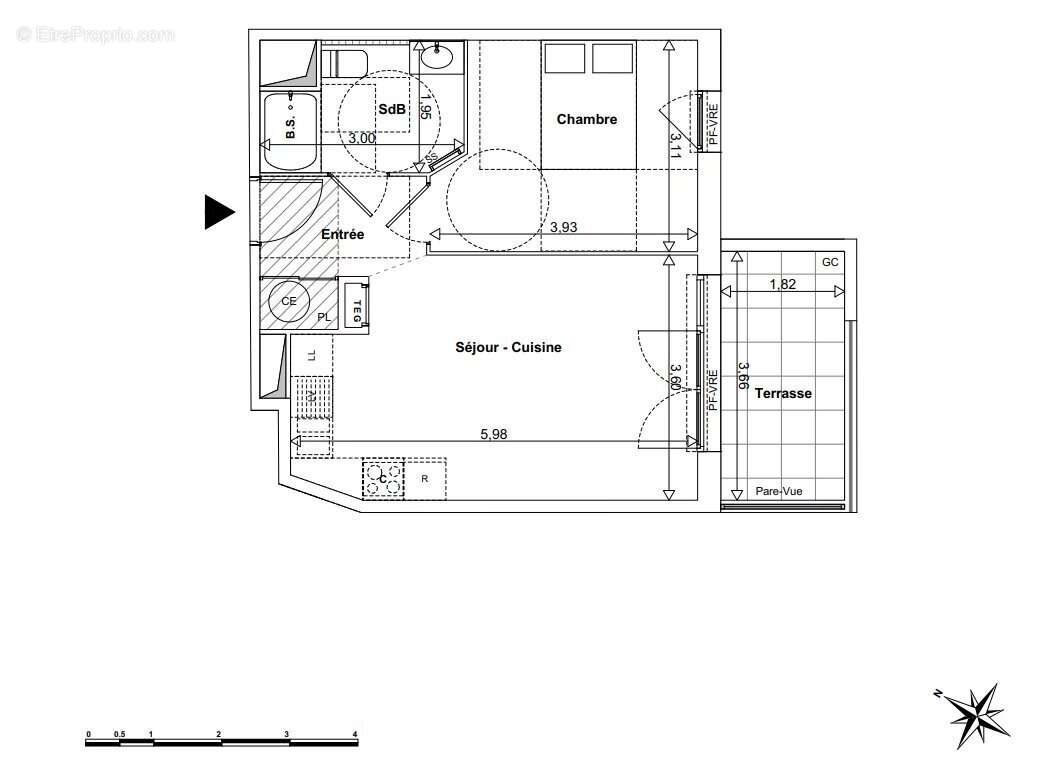
41 m²
2 pièces
parkingbalcon/terrasseascenseuraccès handicapé

Nos partenaires locaux
Idéalement située à l’est de Toulon, limite La Garde aux portes de La Valette-du-Var et à proximité du cap brun et des plages toulonnaises. Un cadre de vie mêlant tranquillité et praticité. Proche des axes principaux et des commodités locales (supermarché, Lycée Rouvière à 6 min en voiture), cette résidence contemporaine est à la croisée d’une vie citadine dynamique et de la douceur méditerranéenne.
Avec ses lignes modernes et épurées, cette résidence intimiste de seulement 30 appartements fonctionnels et lumineux, répartis sur 3 étages. Ce joli logement de deux pièces situé au 2ème étage avec ascenseur bénéficie d'un espace extérieur idéal pour profiter pleinement du climat ensoleillé de la métropole varoise.
Un espace de vie de 20m² composé d'une cuisine ouverte sur séjour.
Une belle chambre et une salle d'eau avec WC.
Parking privatif obligatoire en supplément du prix affiché (12000€)
Prix en TVA réduite sous conditions.
Faible frais de notaire.


Contactez-nous dès maintenant!
Voir plus

Référence: 86418531
Barème des honoraires
GES
A
B
C
D
E
F
G

Prêt immobilier

Vous souhaitez connaître votre capacité d’emprunt et trouver le meilleur crédit immobilier ?
Réaliser une simulation gratuite

Appartement à LA GARDE
Appartement à LA GARDE
Appartement à LA GARDE
Appartement à LA GARDE
Ce site est protégé par reCAPTCHA la Politique de confidentialité et les Conditions d’utilisation de Google s’appliquent.
Obtenir un prêt immobilier au meilleur taux ?

En poursuivant votre navigation sans modifier vos paramètres, vous acceptez l'utilisation de cookies susceptibles de réaliser des statistiques de visite. Cliquez ici pour plus d'informations