Bénéficiez des services de nos partenaires locaux soigneusement sélectionnés
pour vous accompagner dans votre parcours d'achat immobilier

Appartement 52m² à mainvilliers

— Mainvilliers 28300 —
128 900 €
53 m²
2 pièces
balcon/terrasse

Nos partenaires locaux
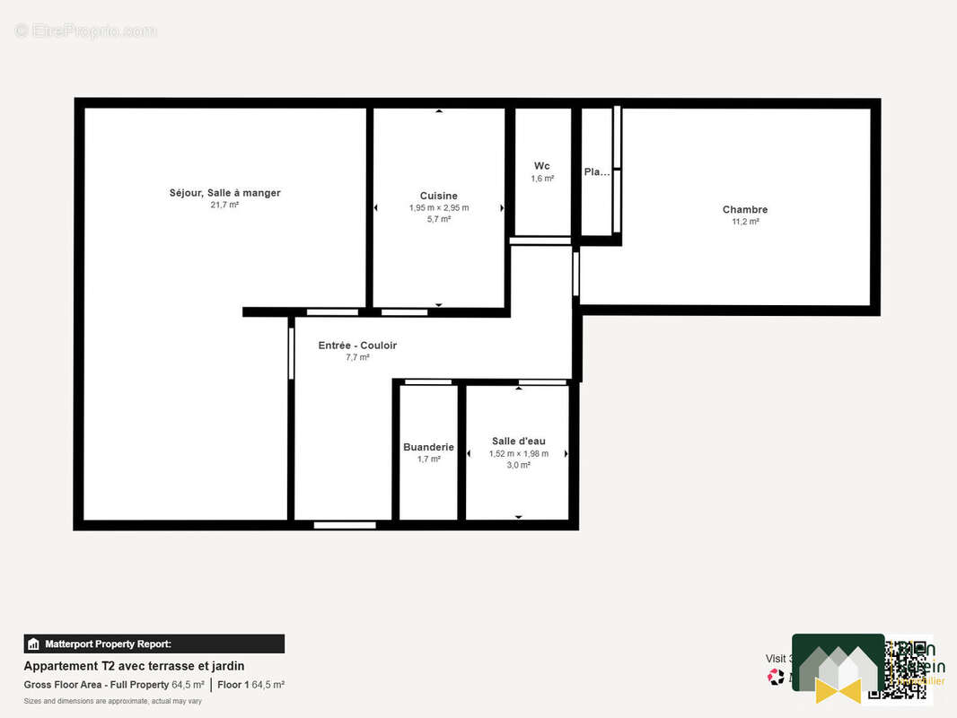
Bienvenue dans votre futur chez-vous ! Nous sommes ravis de vous présenter ce spacieux deux pièces doté d'une agréable terrasse et d'un jardin privatif, le tout, situé dans une résidence appréciée pour son calme et sa localisation proche de la gare et du centre ville de Chartres. Fonctionnel et lumineux, ce bien vous offrira un cadre de vie confortable et pratique.


Découvrez un appartement composé comme suit :
- Une spacieuse entrée
- Un séjour - salle à manger de plus de 21 m²
- Une cuisine indépendante (ouverture possible sur la pièce de vie)
- Une chambre avec placard
- Une salle d'eau
- Un wc indépendant
- Une buanderie

Espaces extérieurs :
- Une terrasse
- Un jardin clos
- Un abris de jardin

Coté confort :
- Situé en rez de chaussée
- Proximité immédiate des commodités

L'emplacement :
Toutes les commodités vous seront accessibles à pieds : vous trouverez un bus à 4 minutes, la gare de Chartres à 700 mètres, et le centre ville à 900 mètres.

N'hésitez pas à contacter votre agent au Noeud Pap' pour obtenir plus d'informations et visiter cet appartement !

Honoraires inclus de 7.42% TTC à la charge de l'acquéreur. Prix hors honoraires 120 000 €. Dans une copropriété de 101 lots. Quote-part moyenne du budget prévisionnel 1 236 €/an. Aucune procédure n'est en cours. Classe énergie D, Classe climat D Montant estimé des dépenses annuelles d'énergie pour un usage standard : entre 1240.00 € et 1710.00 € sur les années 2021, 2022 et 2023 (abonnements compris). Les informations sur les risques auxquels ce bien est exposé sont disponibles sur le site Géorisques : georisques.gouv.fr.

Votre conseiller Bien Serein immobilier : Doriane BARBE
Agent commercial (Entreprise individuelle)
RSAC 829314210
Voir plus

Référence: 777-BIENSEREIN28
Bien en copropriété. Nombre de lots : 101. Charges de copropriété : 1236 €.
Honoraires d'agence de 7.42% à la charge de l'acquéreur
Barème des honoraires
DPE
A
B
C
D
E
F
G
GES
A
B
C
D
E
F
G

Prêt immobilier

Vous souhaitez connaître votre capacité d’emprunt et trouver le meilleur crédit immobilier ?
Réaliser une simulation gratuite

Appartement à MAINVILLIERS
Appartement à MAINVILLIERS
Appartement à MAINVILLIERS
Appartement à MAINVILLIERS
Appartement à MAINVILLIERS
Appartement à MAINVILLIERS
Appartement à MAINVILLIERS
Appartement à MAINVILLIERS
Appartement à MAINVILLIERS
Ce site est protégé par reCAPTCHA la Politique de confidentialité et les Conditions d’utilisation de Google s’appliquent.
Obtenir un prêt immobilier au meilleur taux ?

En poursuivant votre navigation sans modifier vos paramètres, vous acceptez l'utilisation de cookies susceptibles de réaliser des statistiques de visite. Cliquez ici pour plus d'informations