Bénéficiez des services de nos partenaires locaux soigneusement sélectionnés
pour vous accompagner dans votre parcours d'achat immobilier

Dernières opportunités ! villas neuves t5 à auch

— Auch 32000 —
260 000 €
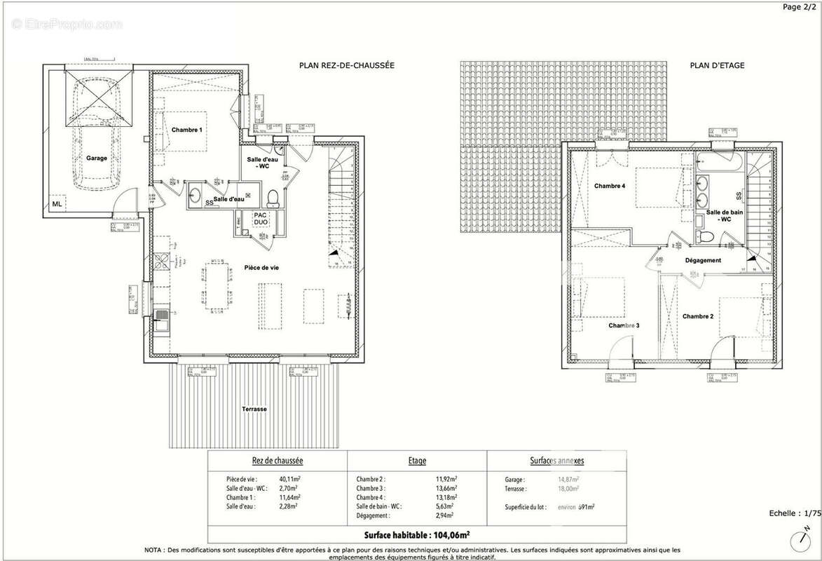
104 m² / 691 m²
5 pièces
parkingbalcon/terrassejardin

Nos partenaires locaux
Unique à Auch ! Situées dans un quartier paisible, à proximité immédiate du centre-ville, des commodités et des lignes de bus, ces derniers lots disponibles au sein d'un nouveau lotissement offrent un cadre de vie moderne et serein. Proposées à la vente en VEFA (Vente en l'État Futur d'Achèvement, livraisons prévues début 2026), ces villas bénéficient de frais de notaire réduits et sont vendues direct promoteur. Cette villa T5 en R+1, pensée pour allier confort et fonctionnalité, se compose : Au rez-de-chaussée, d'une entrée avec WC, d'une chambre avec placard et salle d'eau privative, ainsi que d'une spacieuse pièce de vie baignée de lumière grâce à ses larges ouvertures, avec cuisine ouverte et accès direct à la terrasse. A l'étage, trois chambres spacieuses (12 à 13 m²) équipées de placards et une salle de bain avec WC complètent l'ensemble. Un garage de 15 m², accessible depuis le séjour, vient renforcer le confort du quotidien. Les villas seront livrées finies, avec terrain prêt à être semé. Les peintures et la cuisine restent à la charge de l'acquéreur, afin de personnaliser l'aménagement selon vos goûts. Cette villa est idéale pour : Profiter d'une opportunité rare d'acquérir un bien neuf, sans les contraintes de la construction. Bénéficier d'une chambre en rez-de-chaussée, gage de confort et de praticité. Investir dans une maison écologique répondant à la norme RE2020 (double A+), garantissant économies d'énergie et confort thermique optimal.
Voir plus

Référence: 1420
Honoraires à la charge du vendeur.
Barème des honoraires

Prêt immobilier

Vous souhaitez connaître votre capacité d’emprunt et trouver le meilleur crédit immobilier ?
Réaliser une simulation gratuite

Maison à AUCH
Maison à AUCH
Maison à AUCH
Maison à AUCH
Maison à AUCH
Maison à AUCH
Maison à AUCH
Maison à AUCH
Maison à AUCH
Maison à AUCH
Maison à AUCH
Maison à AUCH
Ce site est protégé par reCAPTCHA la Politique de confidentialité et les Conditions d’utilisation de Google s’appliquent.
Obtenir un prêt immobilier au meilleur taux ?

En poursuivant votre navigation sans modifier vos paramètres, vous acceptez l'utilisation de cookies susceptibles de réaliser des statistiques de visite. Cliquez ici pour plus d'informations