Bénéficiez des services de nos partenaires locaux soigneusement sélectionnés
pour vous accompagner dans votre parcours d'achat immobilier

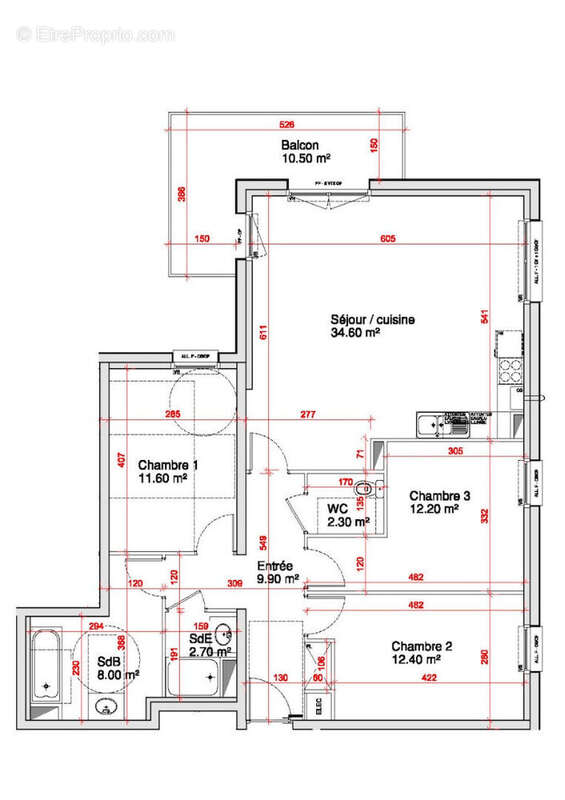
Appartement neuf Saint Martin Boulogne 4 pièce(s) 93.7 m2

— Saint-Martin-Boulogne 62280 —
318 000 €
93 m²
4 pièces
parkingbalcon/terrasseascenseur

Nos partenaires locaux
Laforêt Collection le Touquet-Paris-Plage vous propose: Unique sur le secteur, proche du quartier dernier sous, le projet se situe à coté du monastere. dans un ilot de verdure ! L'agence Laforet le Touquet vous propose ce T4 neuf de 93m2 avec exterieur et place de parking et Box dans cette résidence sécurisée. Les + Appartements basse consommation Ascenseurs Garantie Decennale D'autres lots sont disponibles Laforêt Collection le Touquet-Paris-Plage vous propose plus de 30 programmes sur la Cote d'Opale. Partenaire privilégié d'une dizaine de promoteurs, notre conseiller neuf vous accompagne à chaque étape de votre projet. Copropriété de 25 lots - dont 25 lots habitation. (). Charges annuelles : 700 euros. Mathieu BOUQUE (EI) Agent Commercial - Numéro RSAC : - .
Voir plus

Référence: 1000
Bien en copropriété. Nombre de lots : 25. Charges de copropriété : 700 €. Procédure en cours.
Barème des honoraires
Appartement à SAINT-MARTIN-BOULOGNE
Appartement à SAINT-MARTIN-BOULOGNE
Appartement à SAINT-MARTIN-BOULOGNE
Appartement à SAINT-MARTIN-BOULOGNE
Géorisques

Les informations sur les risques auxquels ce bien est exposé sont disponibles sur le site Géorisques : www.georisques.gouv.fr

Ce site est protégé par hCaptcha Politique de confidentialité et Conditions d’utilisation s’appliquent.