Bénéficiez des services de nos partenaires locaux soigneusement sélectionnés
pour vous accompagner dans votre parcours d'achat immobilier

Appartement 64m² à vallauris

— Vallauris 06220 —
441 100 €
64 m²
3 pièces
parkingbalcon/terrasseascenseur

Nos partenaires locaux
Iad France - Jessica Alessandrini ([Coordonnées masquées]) vous propose : Appartement 3 pièces avec grand jardin - Golfe-Juan

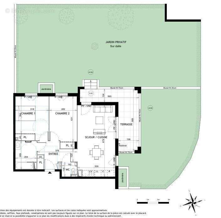
Découvrez ce superbe appartement 3 pièces de 63,74 m² environ situé en rez-de-jardin, dans une résidence moderne et élégante à l'ambiance méditerranéenne. Son orientation Est et sa grande ouverture sur un jardin privatif de 167 m² environ offrent un cadre de vie lumineux et paisible, idéal pour profiter du climat azuréen.

L'espace intérieur comprend un vaste séjour avec cuisine ouverte, deux chambres confortables, une salle de bain contemporaine et un WC séparé. Une terrasse de 15,91 m² environ prolonge harmonieusement l'espace de vie vers l'extérieur.

La résidence, entièrement piétonne et sécurisée, se distingue par son cadre verdoyant et ses prestations haut de gamme : piscine privée, parc arboré, architecture soignée et atmosphère calme à quelques minutes des plages et des commodités.

? Caractéristiques principales :

Type : Appartement T3

Surface habitable : 63,74 m² environ

Terrasse : 15,91 m² environ

Jardin privatif : 167,19 m² environ

Parkings en sous-sol : 2 inclus

Cave incluse

Chauffage : électrique

? Données financières :

Prix de vente TTC : 465 100 ¤
frais de notaire charge vendeur

Loyer de marché estimé : 945 ¤ / mois

Loyer meublé HT annuel : 11 940 ¤

Rentabilité brute estimée : 2,82 %

Zone fiscale : À (éligible LMNP)

Points forts :

Emplacement stratégique entre Cannes et Antibes

Environnement calme et verdoyant

Espace piscine et résidence sécurisée

Proche des plages, commerces, écoles et Sophia Antipolis

Idéal pour résidence principale, secondaire ou investissement locatif

Honoraires d'agence à la charge du vendeur. Bien non soumis au DPE. Les informations sur les risques auxquels ce bien est exposé sont disponibles sur le site Géorisques : www.georisques.gouv.fr. La présente annonce immobilière a été rédigée sous la responsabilité éditoriale de Mlle Jessica Alessandrini EI (ID 90440), mandataire indépendant en immobilier (sans détention de fonds), agent commercial de la SAS I@D France immatriculé au RSAC de Draguigan sous le numéro 451826549, titulaire de la carte de démarchage immobilier pour le compte de la société I@D France SAS.
Retrouvez tous nos biens sur notre site internet. www.iadfrance.fr.
Informations LOI ALUR :
Honoraires charge vendeur. (gedeon_6727_31980883)
Voir plus

Référence: 1856040-15
Honoraires à la charge du vendeur.

Prêt immobilier

Vous souhaitez connaître votre capacité d’emprunt et trouver le meilleur crédit immobilier ?
Réaliser une simulation gratuite

Photo 1 - Appartement à VALLAURIS
Photo 1
Photo 2 - Appartement à VALLAURIS
Photo 2
Photo 3 - Appartement à VALLAURIS
Photo 3
Photo 4 - Appartement à VALLAURIS
Photo 4
Photo 5 - Appartement à VALLAURIS
Photo 5
Photo 6 - Appartement à VALLAURIS
Photo 6
Photo 7 - Appartement à VALLAURIS
Photo 7
Photo 8 - Appartement à VALLAURIS
Photo 8
Photo 9 - Appartement à VALLAURIS
Photo 9
Ce site est protégé par reCAPTCHA la Politique de confidentialité et les Conditions d’utilisation de Google s’appliquent.
Obtenir un prêt immobilier au meilleur taux ?

En poursuivant votre navigation sans modifier vos paramètres, vous acceptez l'utilisation de cookies susceptibles de réaliser des statistiques de visite. Cliquez ici pour plus d'informations