Bénéficiez des services de nos partenaires locaux soigneusement sélectionnés
pour vous accompagner dans votre parcours d'achat immobilier

Appartement 82m² à vallauris

— Vallauris 06220 —
699 900 €
82 m²
4 pièces
parkingbalcon/terrasseascenseur

Nos partenaires locaux
Iad France - Jessica Alessandrini ([Coordonnées masquées]) vous propose : Appartement 4 pièces avec terrasse panoramique - Golfe-Juan
Un cadre de vie rare sur la Côte d'Azur
Entre Cannes et Antibes, découvrez ce superbe 4 pièces en dernier étage avec une terrasse de plus de 81 m² environ, véritable espace de vie à ciel ouvert.
Caractéristiques principales
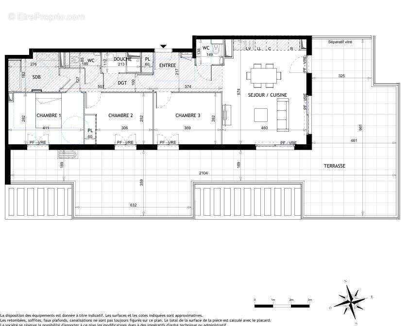
oSurface habitable : 81,7 m² environ
oPièces : séjour / cuisine spacieux de 25,5 m² environ, 3 chambres confortables (11,4 m² environ - 10,4 m² environ - 10,3 m² environ)
oSalle de bains : 5,4 m² environ avec baignoire
oSalle d'eau : 2,1 m² environ avec douche
o2 WC indépendants
oTerrasse : 81,3 m² environ, idéale pour repas, réception et détente au soleil
oExposition : Est / Sud, offrant luminosité et soleil toute la journée
oStationnement : 1 place privative en sous-sol (possibilité cave en option)
Confort et prestations
oGrands volumes lumineux avec larges baies vitrées
oVolets roulants motorisés
oChauffage électrique performant
oSalle de bains et salle d'eau équipées
oRésidence sécurisée avec espaces verts et piscine
Localisation
Golfe-Juan séduit par son ambiance balnéaire et son charme méditerranéen.
À seulement quelques minutes des plages, des commerces et des axes routiers, vous rejoignez facilement Cannes, Antibes, Sophia Antipolis ou Nice.
Potentiel locatif
Loyer de marché estimé : ~1 150 ¤ / mois
oRentabilité brute : env. 2,5 % par an (hors fiscalité et charges)
Convient aussi bien en résidence principale, secondaire ou investissement.
Prix de vente : 699 900 ¤
Frais de notaire à la charge du vendeur.

Honoraires d'agence à la charge du vendeur. Bien non soumis au DPE. Les informations sur les risques auxquels ce bien est exposé sont disponibles sur le site Géorisques : www.georisques.gouv.fr. La présente annonce immobilière a été rédigée sous la responsabilité éditoriale de Mlle Jessica Alessandrini EI (ID 90440), mandataire indépendant en immobilier (sans détention de fonds), agent commercial de la SAS I@D France immatriculé au RSAC de Draguigan sous le numéro 451826549, titulaire de la carte de démarchage immobilier pour le compte de la société I@D France SAS.
Retrouvez tous nos biens sur notre site internet. www.iadfrance.fr.
Informations LOI ALUR :
Honoraires charge vendeur. (gedeon_6727_31980885)
Voir plus

Référence: 1856040-17
Honoraires à la charge du vendeur.

Prêt immobilier

Vous souhaitez connaître votre capacité d’emprunt et trouver le meilleur crédit immobilier ?
Réaliser une simulation gratuite

Photo 1 - Appartement à VALLAURIS
Photo 1
Photo 2 - Appartement à VALLAURIS
Photo 2
Photo 3 - Appartement à VALLAURIS
Photo 3
Photo 4 - Appartement à VALLAURIS
Photo 4
Photo 5 - Appartement à VALLAURIS
Photo 5
Photo 6 - Appartement à VALLAURIS
Photo 6
Photo 7 - Appartement à VALLAURIS
Photo 7
Photo 8 - Appartement à VALLAURIS
Photo 8
Photo 9 - Appartement à VALLAURIS
Photo 9
Ce site est protégé par reCAPTCHA la Politique de confidentialité et les Conditions d’utilisation de Google s’appliquent.
Obtenir un prêt immobilier au meilleur taux ?

En poursuivant votre navigation sans modifier vos paramètres, vous acceptez l'utilisation de cookies susceptibles de réaliser des statistiques de visite. Cliquez ici pour plus d'informations