Bénéficiez des services de nos partenaires locaux soigneusement sélectionnés
pour vous accompagner dans votre parcours d'achat immobilier

Appartement 65m² à vallauris

— Vallauris 06220 —
446 000 €
65 m²
3 pièces
parkingbalcon/terrasseascenseur

Nos partenaires locaux
Iad France - Jessica Alessandrini ([Coordonnées masquées]) vous propose : Appartement 3 pièces avec vaste jardin et terrasse - Golfe-Juan

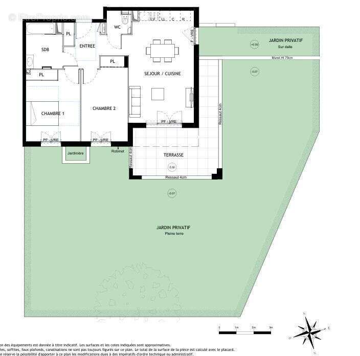
Ce superbe appartement de 64,70 m² environ en rez-de-jardin allie élégance, confort et rareté. Idéalement conçu pour profiter pleinement du cadre méditerranéen, il offre des volumes harmonieux et une belle ouverture sur un grand espace extérieur de plus de 170 m² environ.

Un intérieur spacieux et fonctionnel

Dès l'entrée, vous apprécierez l'agencement optimisé et la luminosité traversante.

Séjour / cuisine de 24 m² environ, pensé comme un véritable lieu de vie convivial, avec de larges baies vitrées donnant sur la terrasse.

Deux chambres confortables (environ 11 m² environ et 10,5 m² environ), toutes deux équipées de rangements intégrés.

Salle de bains moderne avec finitions soignées et équipements de qualité.

WC indépendant pour plus de confort.

Les matériaux ont été choisis pour leur qualité et leur durabilité, garantissant un confort de vie optimal au quotidien.

Un extérieur d'exception

Prolongement naturel du séjour, la terrasse de 18 m² environ accueille aisément un coin repas et un espace détente.
Elle s'ouvre sur un jardin privatif de 157 m² environ, entièrement plat et arboré, parfait pour profiter du soleil tout au long de la journée.
L'exposition Est / Sud assure une belle luminosité matinale et un ensoleillement continu jusqu'en après-midi.
Un véritable espace à vivre en plein air, rare pour ce secteur recherché.

Confort et prestations

Place de stationnement en sous-sol incluse

Cave privative pour davantage de rangement

Résidence sécurisée, avec espaces verts paysagers et piscine à disposition

Accès piéton fluide, environnement calme et verdoyant

Un investissement patrimonial attractif

Prix : 446 000 ¤
frais de notaire a la charge vendeur
Surface totale exploitable (intérieur + terrasse + jardin) : plus de 220 m² environ

Loyer de marché estimé : 1 030 ¤ / mois

Rentabilité brute estimée : 2,77 %

Cet appartement se distingue par la rareté de ses volumes extérieurs, son orientation lumineuse et son emplacement privilégié, à proximité immédiate des commodités, des plages et des axes principaux.

Idéal pour :

Une résidence principale à l'esprit maison

Un pied-à-terre en bord de mer

Un investissement locatif patrimonial à forte valeur de revente

Un bien rare sur le littoral azuréen, offrant un équilibre parfait entre confort intérieur, espace extérieur exceptionnel et environnement résidentiel apaisé.
Contactez-nous pour plus d'informations ou organiser une visite personnalisée.

Honoraires d'agence à la charge du vendeur. Bien non soumis au DPE. Les informations sur les risques auxquels ce bien est exposé sont disponibles sur le site Géorisques : www.georisques.gouv.fr. La présente annonce immobilière a été rédigée sous la responsabilité éditoriale de Mlle Jessica Alessandrini EI (ID 90440), mandataire indépendant en immobilier (sans détention de fonds), agent commercial de la SAS I@D France immatriculé au RSAC de Draguigan sous le numéro 451826549, titulaire de la carte de démarchage immobilier pour le compte de la société I@D France SAS.
Retrouvez tous nos biens sur notre site internet. www.iadfrance.fr.
Informations LOI ALUR :
Honoraires charge vendeur. (gedeon_6727_31987034)
Voir plus

Référence: 1856040-9
Honoraires à la charge du vendeur.

Prêt immobilier

Vous souhaitez connaître votre capacité d’emprunt et trouver le meilleur crédit immobilier ?
Réaliser une simulation gratuite

Photo 1 - Appartement à VALLAURIS
Photo 1
Photo 2 - Appartement à VALLAURIS
Photo 2
Photo 3 - Appartement à VALLAURIS
Photo 3
Photo 4 - Appartement à VALLAURIS
Photo 4
Photo 5 - Appartement à VALLAURIS
Photo 5
Photo 6 - Appartement à VALLAURIS
Photo 6
Photo 7 - Appartement à VALLAURIS
Photo 7
Photo 8 - Appartement à VALLAURIS
Photo 8
Photo 9 - Appartement à VALLAURIS
Photo 9
Ce site est protégé par reCAPTCHA la Politique de confidentialité et les Conditions d’utilisation de Google s’appliquent.
Obtenir un prêt immobilier au meilleur taux ?

En poursuivant votre navigation sans modifier vos paramètres, vous acceptez l'utilisation de cookies susceptibles de réaliser des statistiques de visite. Cliquez ici pour plus d'informations