Bénéficiez des services de nos partenaires locaux soigneusement sélectionnés
pour vous accompagner dans votre parcours d'achat immobilier

En exclusivité - appartement 100 m² hypercentre saint brieuc - 3 chambres - aucun travaux

— Saint-Brieuc 22000 —
210 000 €
100 m²
4 pièces
parking

Nos partenaires locaux
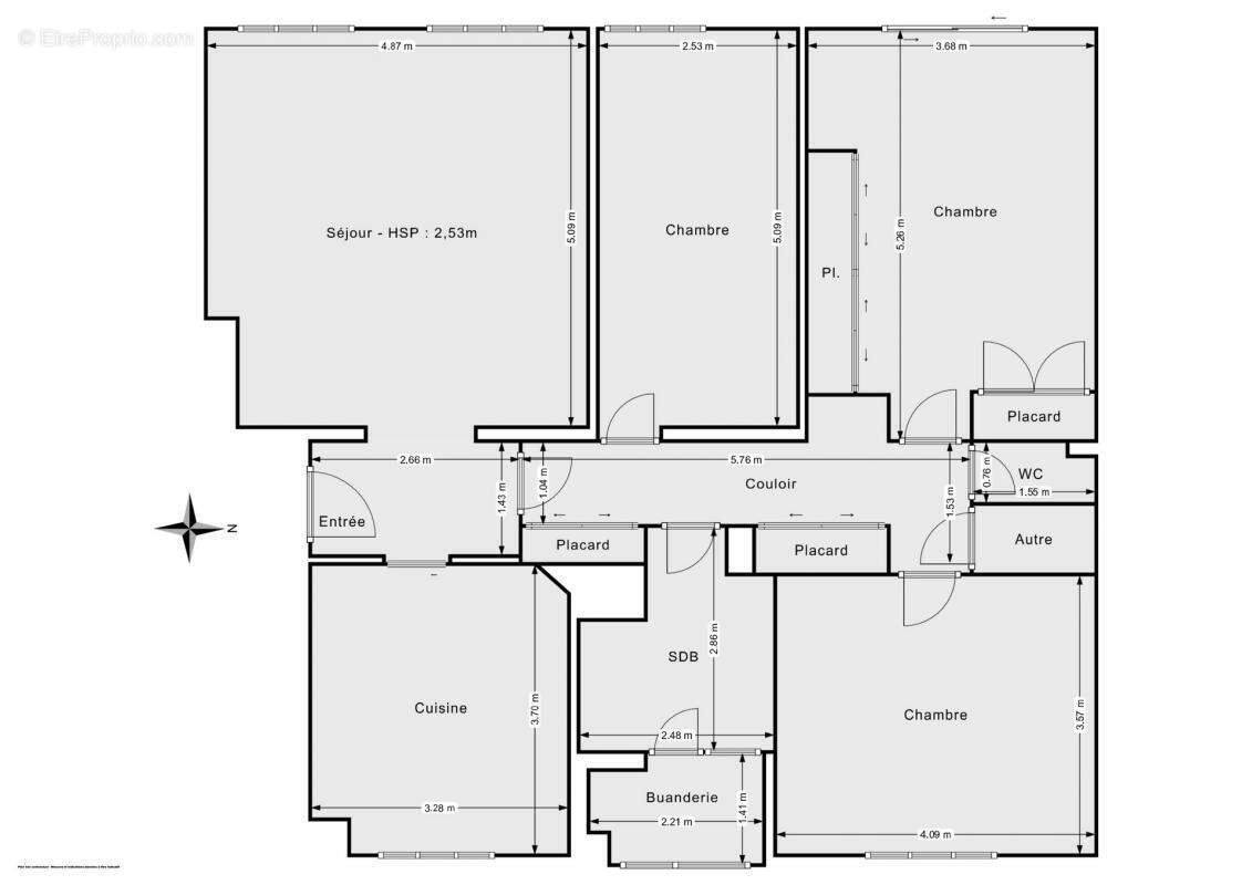
Liberkeys vous propose, en exclusivité à Saint-Brieuc, ce magnifique appartement bourgeois de 100 m² Carrez, alliant le charme de l'ancien au confort moderne. Idéal pour une famille en quête d'espace, de luminosité et de raffinement.

Situé dans un quartier prisé, cet emplacement offre un accès facile à toutes les commodités : commerces, écoles réputées, transports et axes principaux pour vos déplacements quotidiens.
Dès l'entrée, vous serez séduit par les volumes généreux et la belle hauteur sous plafond. Le séjour lumineux de 23 m² invite à des moments conviviaux, tandis que la cuisine indépendante de 11 m², à la fois fonctionnelle et accueillante, ravira les amateurs de gastronomie.
Le coin nuit se compose de deux grandes chambres (17 et 13 m²), parfaites pour une vie de famille ou pour aménager une suite parentale et une chambre d'enfant. Une troisième chambre de 12 m², que vous pourrez transformer en bureau selon vos besoins, vient compléter cet espace, idéal pour le télétravail ou une salle de jeux.
La salle de bain de 5 m², agrémentée d'une loggia de 2 m² servant d'espace buanderie, offre praticité et confort. WC séparé.
Une cave et un stationnement dédié complétent le bien.

Copropriété entretenue (charges faibles : 100 €/mois),
Taxe foncière : 1 500 €,
Performance énergétique :
Montant estimé des dépenses annuelles d'énergie pour un usage standard : entre 1 840 € et 2 540 € par an (prix moyens indexés sur 2023, abonnements compris).

Ce bien vous séduit ?
Visitez-le dès maintenant en 3D sur le site de Liberkeys ou contactez directement votre conseiller Olivier Charlet (RSAC Saint-Brieuc 408 900 215) au [Coordonnées masquées].
Référence annonce : DOM25159
Date de réalisation du diagnostic : 01/11/2025
Honoraires à la charge du vendeur.
Voir plus

Référence: DOM25159
Bien en copropriété. Nombre de lots : 8. Charges de copropriété : 100 €.
Honoraires à la charge du vendeur.
DPE
A
B
C
D
E
F
G
GES
A
B
C
D
E
F
G

Prêt immobilier

Vous souhaitez connaître votre capacité d’emprunt et trouver le meilleur crédit immobilier ?
Réaliser une simulation gratuite

Appartement à SAINT-BRIEUC
Appartement à SAINT-BRIEUC
Appartement à SAINT-BRIEUC
Appartement à SAINT-BRIEUC
Appartement à SAINT-BRIEUC
Appartement à SAINT-BRIEUC
Appartement à SAINT-BRIEUC
Appartement à SAINT-BRIEUC
Appartement à SAINT-BRIEUC
Ce site est protégé par reCAPTCHA la Politique de confidentialité et les Conditions d’utilisation de Google s’appliquent.
Obtenir un prêt immobilier au meilleur taux ?

En poursuivant votre navigation sans modifier vos paramètres, vous acceptez l'utilisation de cookies susceptibles de réaliser des statistiques de visite. Cliquez ici pour plus d'informations