Bénéficiez des services de nos partenaires locaux soigneusement sélectionnés
pour vous accompagner dans votre parcours d'achat immobilier

Bandol centre-ville local commercial loué + charmant duplex avec terrasse

— Bandol 83150 —
480 000 €
87 m²
balcon/terrasse

Nos partenaires locaux
Rare à la vente, au cœur du centre-ville de Bandol, découvrez cette opportunité d’investissement unique, une monopropriété alliant rendement locatif immédiat et potentiel de valorisation
Un bien alliant rendement locatif immédiat et fort potentiel de valorisation à long terme.
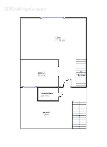
Composition du bien :
- Local commercial de 30 m2
Actuellement loué 780 €/mois, bail commercial 9 ans en cours (échéance 2028). Espace principal, réserve, sanitaires.Revenu locatif sécurisé, situation stratégique avec flux constant de passage.
- Appartement T2 en duplex 52,44 m2 Au premier étage, un logement lumineux et plein de charme : séjour avec cuisine ouverte, chambre confortable, salle de bain avec baignoire, terrasse privative et cour intérieure. Exploitable en résidence principale, location annuelle ou saisonnière, selon votre stratégie d’investissement.
Les atouts investisseurs :


Emplacement premium au centre-ville de Bandol


Revenus immédiats grâce au local commercial


Rentabilité modulable selon le mode d’exploitation du logement


Double levier patrimonial et locatif


Ensemble vendu uniquement (local + appartement)


Surface totale : 87 m2


Un bien complet et pérenne, idéal pour un investisseur recherchant sécurité, rentabilité et valorisation dans une station balnéaire prisée.
Un emplacement d’exception, un produit rare — à saisir rapidement !
Voir plus

Honoraires d'agence de 2.56% à la charge de l'acquéreur
Barème des honoraires
DPE
A
B
C
D
E
F
G
GES
A
B
C
D
E
F
G

Prêt immobilier

Vous souhaitez connaître votre capacité d’emprunt et trouver le meilleur crédit immobilier ?
Réaliser une simulation gratuite

Appartement à BANDOL
Appartement à BANDOL
Appartement à BANDOL
Appartement à BANDOL
Appartement à BANDOL
Appartement à BANDOL
Appartement à BANDOL
Appartement à BANDOL
Appartement à BANDOL
Appartement à BANDOL
Ce site est protégé par reCAPTCHA la Politique de confidentialité et les Conditions d’utilisation de Google s’appliquent.
Obtenir un prêt immobilier au meilleur taux ?

En poursuivant votre navigation sans modifier vos paramètres, vous acceptez l'utilisation de cookies susceptibles de réaliser des statistiques de visite. Cliquez ici pour plus d'informations