Bénéficiez des services de nos partenaires locaux soigneusement sélectionnés
pour vous accompagner dans votre parcours d'achat immobilier

Maison familiale, 4 chambres, située impasse de la grenouillère

— Vert-Saint-Denis 77240 —
275 000 €
90 m²
5 pièces
parking

Nos partenaires locaux


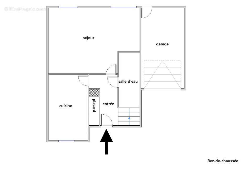
L’Agence Le Réseau, une commission fixe de 8 500€ vous propose à la vente cette maison individuelle familiale de 89,5m2 avec jardin de 120m2 située Impasse de la Grenouillère. 
 
Cette maison lumineuse, calme et traversante se compose:
 
Au premier niveau: d'une entrée, d'un séjour donnant sur l'extérieur, d'une salle d'eau avec WC
 
Au second niveau: de 4 chambres, d'une salle d'eau et d'un WC séparé. 
 
Un jardin de 120m2 vient compléter l'ensemble, ainsi qu'un garage. 
 
Le chauffage et l'eau chaude sont fournis par une chaudière à gaz.
 


 
Voir plus

Honoraires d'agence de 3.19% à la charge de l'acquéreur
Barème des honoraires
DPE
A
B
C
D
E
F
G
GES
A
B
C
D
E
F
G

Prêt immobilier

Vous souhaitez connaître votre capacité d’emprunt et trouver le meilleur crédit immobilier ?
Réaliser une simulation gratuite

Maison à VERT-SAINT-DENIS
Maison à VERT-SAINT-DENIS
Maison à VERT-SAINT-DENIS
Maison à VERT-SAINT-DENIS
Maison à VERT-SAINT-DENIS
Maison à VERT-SAINT-DENIS
Maison à VERT-SAINT-DENIS
Maison à VERT-SAINT-DENIS
Maison à VERT-SAINT-DENIS
Maison à VERT-SAINT-DENIS
Maison à VERT-SAINT-DENIS
Maison à VERT-SAINT-DENIS
Maison à VERT-SAINT-DENIS
Ce site est protégé par reCAPTCHA la Politique de confidentialité et les Conditions d’utilisation de Google s’appliquent.
Obtenir un prêt immobilier au meilleur taux ?

En poursuivant votre navigation sans modifier vos paramètres, vous acceptez l'utilisation de cookies susceptibles de réaliser des statistiques de visite. Cliquez ici pour plus d'informations