Pas de parking à Verrey-Sous-Salmaise pour le moment. Découvrez dès maintenant les parkings dans le département Côte-d'Or.
Bénéficiez des services de nos partenaires locaux soigneusement sélectionnés
pour vous accompagner dans votre parcours d'achat immobilier

Voir tous les partenaires locaux

Paris xvi - lauriston - local commercial

— Paris-16e 75016 —
682 500 €
73 m²

Nos partenaires locaux
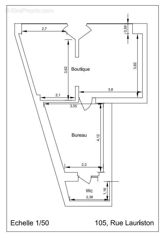
105 Rue Lauriston - Au rez de chaussée d'un immeuble ancien, Local Commercial vendu loué d'une superficie 46,59 m², (73,16 m² au sol) répartie comme suit :

- Boutique 30,11 m²
- Arrière boutique 12,59 m²
- Cuisine 3,89 m²

Très bon état général, environnement commerçant.

Bail 3/6/9 - Octobre 2024 - Activité Mondial Relay - Loyer Annuel HT 32 400 € - Non soumis à TVA.
Taxe foncière à la charge du locataire.

LOI ALUR :
Quote-part annuelle du budget prévisionnel d'environ 2 040 euros/an.

Aucune procédure en cours à ce jour sur le fondement des articles 29-1 A et 29-1 de la loi n°65-557 du 10 juillet 1965, ni de l’article L.615-6 du Code de la Construction et de l’Habitation.
Un état actualisé des procédures sera demandé au syndic pour le jour de la signature du compromis ou de la promesse de vente.

Honoraires agence charge acquéreur (32 500 € TTC), soit 5 %TTC du prix de vente, 650 000 € Hors Honoraires d'Agence.

Les informations sur les risques auxquels ce bien est exposé sont disponibles sur le site Géorisques : www.georisques.gouv.fr

Notre barème d'honoraires est disponible sur www.ravier-immobilier.com
Voir plus

Référence: 86420307
Barème des honoraires

Prêt immobilier

Vous souhaitez connaître votre capacité d’emprunt et trouver le meilleur crédit immobilier ?
Réaliser une simulation gratuite

Commerce à PARIS-16E
Commerce à PARIS-16E
Commerce à PARIS-16E
Commerce à PARIS-16E
Ce site est protégé par reCAPTCHA la Politique de confidentialité et les Conditions d’utilisation de Google s’appliquent.
Obtenir un prêt immobilier au meilleur taux ?

En poursuivant votre navigation sans modifier vos paramètres, vous acceptez l'utilisation de cookies susceptibles de réaliser des statistiques de visite. Cliquez ici pour plus d'informations