Bénéficiez des services de nos partenaires locaux soigneusement sélectionnés
pour vous accompagner dans votre parcours d'achat immobilier

Immeuble de rapport bron 66.63 m2

— Bron 69500 —
262 500 €
67 m²
6 pièces
parking

Nos partenaires locaux
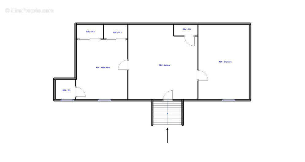
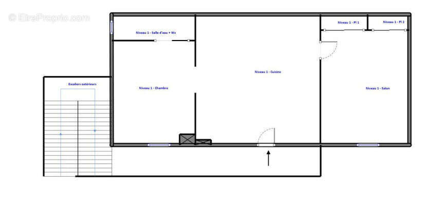
L'agence Guy Hoquet L'immobilier LYON 6e vous propose à la vente : Nichée au calme d'une impasse pavillonnaire du quartier familial des Charmilles à Bron, cette maison avec jardin, répartie aujourd'hui en deux appartements indépendants, offre un fort potentiel de rénovation et d'aménagement. L'ensemble développe 66,63 m² (hors annexes) composés comme suit : Rez-de-chaussée - Environ 34 m² permettant un appartement de type T2, bénéficiant d'un accès direct au jardin. 1er étage - Environ 32 m² offrant un potentiel de T2 lumineux avec une entrée totalement indépendante par escaliers extérieurs. Vous bénéficierez en annexes de deux garages d'environ 12 m² chacun, d'une cave de 32 m², ainsi que d'un abris de jardin. Les atouts : - Accès indépendants pour chaque logement - Secteur calme, impasse résidentielle - Métro D Mermoz Pinel à une dizaine de minutes à pied - Nombreuses possibilités : investissement locatif, résidence principale avec logement indépendant, ou projet familial - Proximité immédiate du Parc de Parilly - Facilité d'accéder au périphérique A visiter sans tarder ! Les informations sur les risques auxquels ce bien est exposé sont disponibles sur le site Géorisques : www.georisques.gouv.fr (article R. 125-25 du Code de l'environnement) GUY HOQUET L'IMMOBILIER Lyon 6e l'agence spécialiste de l'immobilier Lyonnais Achat/vente/location/gestion d'appartements, maisons et terrains. Prix m². Estimation offerte sur simple demande. https://www.guy-hoquet.com/agence-immobiliere/lyon-6-rhone
Voir plus

Honoraires à la charge du vendeur.
DPE
A
B
C
D
E
F
G
GES
A
B
C
D
E
F
G

Prêt immobilier

Vous souhaitez connaître votre capacité d’emprunt et trouver le meilleur crédit immobilier ?
Réaliser une simulation gratuite

Appartement à BRON
Appartement à BRON
Appartement à BRON
Appartement à BRON
Appartement à BRON
Appartement à BRON
Appartement à BRON
Appartement à BRON
Appartement à BRON
Appartement à BRON
Appartement à BRON
Appartement à BRON
Appartement à BRON
Appartement à BRON
Appartement à BRON
Ce site est protégé par reCAPTCHA la Politique de confidentialité et les Conditions d’utilisation de Google s’appliquent.
Obtenir un prêt immobilier au meilleur taux ?

En poursuivant votre navigation sans modifier vos paramètres, vous acceptez l'utilisation de cookies susceptibles de réaliser des statistiques de visite. Cliquez ici pour plus d'informations