Terrain taverny 745 m2

— Taverny 95150 —
350 000 €
745 m²
jardin

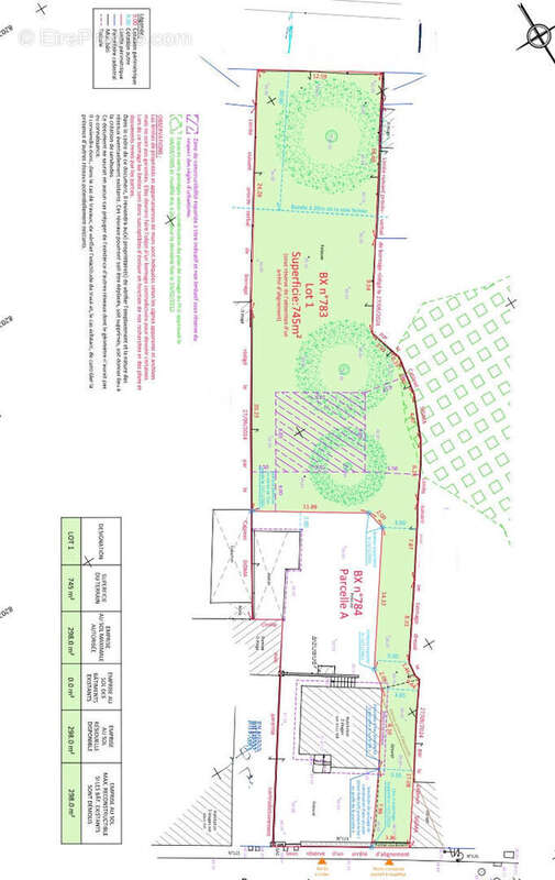
L'agence FSImmobilier - vous propose à TAVERNY centre-ville secteur Vaucelles ce beau terrain à bâtir de 745m2. Terrain plat en lot arrière à l'abri des regards avec un fort potentiel de construction et une emprise au sol de 298 m2. Zone du PLU UGA. N'hésitez pas à contacter l'agence FSImmobilier au [Coordonnées masquées]. Honoraire charge vendeurs. Les informations sur les risques auxquels ce bien est exposé sont disponibles sur le site Géorisques : www.georisques.gouv.fr

Référence: 1966
Honoraires à la charge du vendeur.
Barème des honoraires

Prêt immobilier

Vous souhaitez connaître votre capacité d’emprunt et trouver le meilleur crédit immobilier ?
Réaliser une simulation gratuite

Terrain à TAVERNY
Terrain à TAVERNY
Terrain à TAVERNY
Terrain à TAVERNY
Ce site est protégé par reCAPTCHA la Politique de confidentialité et les Conditions d’utilisation de Google s’appliquent.
Obtenir un prêt immobilier au meilleur taux ?

En poursuivant votre navigation sans modifier vos paramètres, vous acceptez l'utilisation de cookies susceptibles de réaliser des statistiques de visite. Cliquez ici pour plus d'informations