Maison saint-herblain - 4 chambres - garage

— Saint-Herblain 44800 —
408 100 €
114 m² / 347 m²
6 pièces
jardin

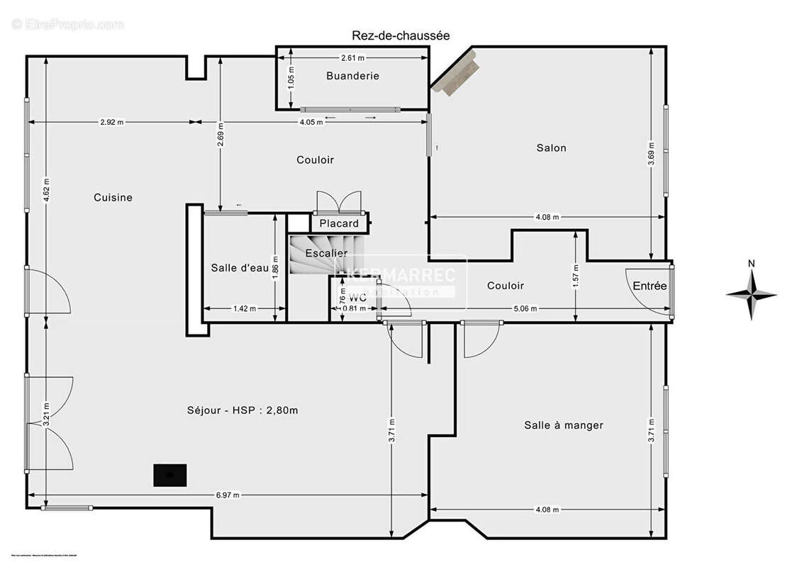
A proximité des écoles, des commerces, des transports en commun (Tram 3 Beauséjour, C20 et C8) et des services de proximité. Venez découvrir cette charmante maison de 114 m² habitable (144 m² au sol) sur une parcelle close d'un peu plus de 340 m². Elle se compose au rez-de-chaussée : d'une entrée avec couloir desservant une chambre, un salon, un coin buanderie, une grande cuisine semi-ouverte équipée et aménagée, une salle d'eau et des W.C. indépendants. A l'étage, trois chambres et une salle de bains avec double vasque et W.C. En complément, vous disposez d'un garage et un atelier en fond de parcelle. Chauffage au gaz et poêle à pellets. N'attendez plus et contactez nous pour plus d'information !
Voir plus

Référence: 1416
Honoraires d'agence de 6% à la charge de l'acquéreur
DPE
A
B
C
D
E
F
G
GES
A
B
C
D
E
F
G

Prêt immobilier

Vous souhaitez connaître votre capacité d’emprunt et trouver le meilleur crédit immobilier ?
Réaliser une simulation gratuite

Maison à SAINT-HERBLAIN
Maison à SAINT-HERBLAIN
Maison à SAINT-HERBLAIN
Maison à SAINT-HERBLAIN
Maison à SAINT-HERBLAIN
Maison à SAINT-HERBLAIN
Maison à SAINT-HERBLAIN
Maison à SAINT-HERBLAIN
Maison à SAINT-HERBLAIN
Maison à SAINT-HERBLAIN
Maison à SAINT-HERBLAIN
Ce site est protégé par reCAPTCHA la Politique de confidentialité et les Conditions d’utilisation de Google s’appliquent.
Obtenir un prêt immobilier au meilleur taux ?

En poursuivant votre navigation sans modifier vos paramètres, vous acceptez l'utilisation de cookies susceptibles de réaliser des statistiques de visite. Cliquez ici pour plus d'informations