Terrain prêt-à-construire à saint-joachim - permis accordé ! vente interactive

— Saint-Joachim 44720 —
43 000 €
375 m²
jardin

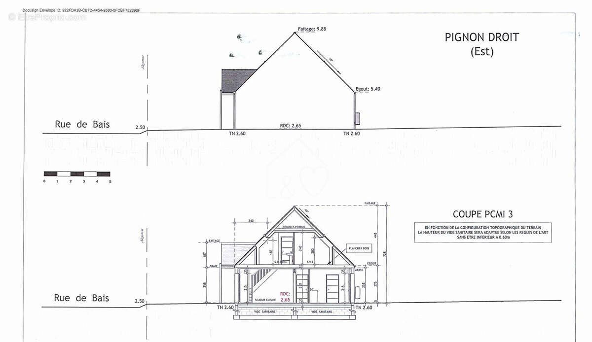
Agence Loire et Océan vous propose une opportunité rare et clé en main à SAINT-JOACHIM (44720) ! Découvrez ce magnifique terrain à bâtir, libre de constructeur, idéalement situé et bénéficiant d'un atout majeur : un Permis de Construire (PC) déjà accordé par la mairie ! - Les Atouts du Projet : Projet Validé : Le permis de construire est purgé de tout recours, vous permettant de démarrer les travaux immédiatement. Maison R+1 : Le projet validé prévoit une maison familiale moderne en R+1 (Rez-de-chaussée + 1 étage), offrant un cadre de vie optimal. Confort Garanti : La future maison comprendra 3 chambres et un garage. Cadre de Vie : Construisez la maison de vos rêves dans un environnement agréable et serein au coeur de la Brière. - Localisation Privilégiée : Cet emplacement est tout simplement idéal pour une famille : Commodités à Proximité : Établissements scolaires, commerces de proximité et services sont accessibles en seulement quelques minutes. Accessibilité : Rejoignez rapidement l'axe Nantes - Saint-Nazaire, assurant un trajet facile pour le travail ou les loisirs. Commune Dynamique : SAINT-JOACHIM est une ville accueillante et en plein essor, offrant une belle qualité de vie. - Saisissez Cette Chance ! Que ce soit pour votre résidence principale ou un investissement locatif pérenne, ce terrain avec PC accordé vous fait gagner un temps précieux et vous offre une sécurité administrative. Ne laissez pas passer cette occasion unique de devenir propriétaire sans les délais et l'incertitude d'une demande de permis ! - Contactez-nous sans tarder : Pour plus d'informations, consulter les plans du projet ou organiser une visite du terrain, contactez l'Agence Loire et Océan dès aujourd'hui. Votre futur est à SAINT-JOACHIM. Appelez-nous ! Vente interactive à prix LIBRE: les offres seront reçues sur la plateforme SQUARIMO : à partir du 07/11/2025 à 10:00 jusqu'au 15/12/2025 à 22:00. Le prix affiché correspond à un prix de première offre possible honoraires de négociation inclus, étant précisé que ledit prix n'étant pas forcément un prix auquel le vendeur souhaite vendre. Une offre en ligne pendant la vente interactive ne constitue pas une offre ferme et définitive au sens de l'article 1114 du Code Civil, mais une simple intention d'achat. La Participation à la vente interactive de SQUARIMO n'entraine aucun frais supplémentaire pour l'acquéreur, ou pour le vendeur. La participation à la vente interactive est soumise à agrément préalable de SQUARIMO. https://squarimo.com/j-achete.php
Voir plus

Référence: 1956
Honoraires à la charge du vendeur.

Prêt immobilier

Vous souhaitez connaître votre capacité d’emprunt et trouver le meilleur crédit immobilier ?
Réaliser une simulation gratuite

Terrain à SAINT-JOACHIM
Terrain à SAINT-JOACHIM
Terrain à SAINT-JOACHIM
Terrain à SAINT-JOACHIM
Terrain à SAINT-JOACHIM
Terrain à SAINT-JOACHIM
Terrain à SAINT-JOACHIM
Terrain à SAINT-JOACHIM
Terrain à SAINT-JOACHIM
Terrain à SAINT-JOACHIM
Ce site est protégé par reCAPTCHA la Politique de confidentialité et les Conditions d’utilisation de Google s’appliquent.
Obtenir un prêt immobilier au meilleur taux ?

En poursuivant votre navigation sans modifier vos paramètres, vous acceptez l'utilisation de cookies susceptibles de réaliser des statistiques de visite. Cliquez ici pour plus d'informations