Bénéficiez des services de nos partenaires locaux soigneusement sélectionnés
pour vous accompagner dans votre parcours d'achat immobilier

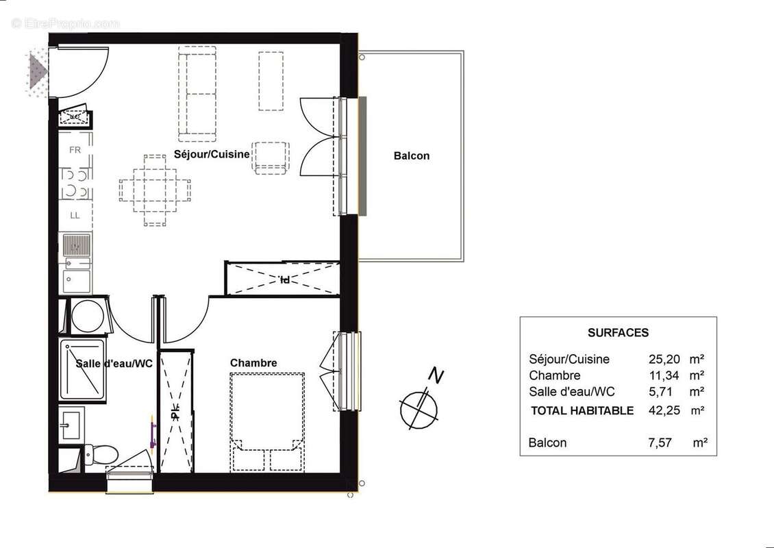
Appartement 42m² à blanquefort

— Blanquefort 33290 —
223 000 €
42 m²
2 pièces
parkingascenseuraccès handicapé

Nos partenaires locaux
Bordeaux-Blanquefort, beau T2 de 42 m², au deuxième et dernier étage, avec ascenseur, d’une résidence de 44 logements, répartis sur trois bâtiments. Il se compose d’une pièce de vie ouvrant sur une terrasse de 8 m², d'une belle chambres et d’une salle de bains. Conforme à la norme RE2025, il est équipé d’un chauffage électrique. Il dispose de 2 places de stationnement. Le centre de Blanquefort avec son marché, son cinéma se trouve à 150 m, la gare SNCF et le tram C à 1.2 km et le supermarché à 500 m. Écoles, collège et lycée sont accessibles à pied. Il sera disponible en décembre 2026. Taxe foncière 650euros, charges mensuelles 50 euros. Les honoraires d’agence sont à la charge du vendeur. Les risques auxquels ce bien est exposé sont disponibles sur le site Géorisques: www.georisque.gouv.fr
Voir plus

Référence: 104
Bien en copropriété. Nombre de lots : 44. Charges de copropriété : 600 €.
Honoraires à la charge du vendeur.
Barème des honoraires

Prêt immobilier

Vous souhaitez connaître votre capacité d’emprunt et trouver le meilleur crédit immobilier ?
Réaliser une simulation gratuite

Appartement à BLANQUEFORT
Appartement à BLANQUEFORT
Appartement à BLANQUEFORT
Appartement à BLANQUEFORT
Appartement à BLANQUEFORT
Ce site est protégé par reCAPTCHA la Politique de confidentialité et les Conditions d’utilisation de Google s’appliquent.
Obtenir un prêt immobilier au meilleur taux ?

En poursuivant votre navigation sans modifier vos paramètres, vous acceptez l'utilisation de cookies susceptibles de réaliser des statistiques de visite. Cliquez ici pour plus d'informations