Bénéficiez des services de nos partenaires locaux soigneusement sélectionnés
pour vous accompagner dans votre parcours d'achat immobilier

Pennautier - maison - pp - 3 chambres - piscine

— Carcassonne 11000 —
246 000 €
129 m² / 600 m²
4 pièces
parkingjardin

Nos partenaires locaux
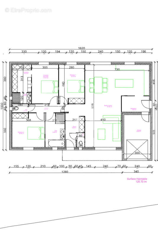
Réf 12830 ME - PENNAUTIER - Sur terrain de 600 m2 clos de murs, avec piscine en dur creusée. La maison de 129 m2 habitable Hors d'eau / Hors d'air avec cloisons intérieures, le reste est à terminer. La maison est composée d'une grande pièce de vie avec cuisine ouverte, 3 chambres dont une suite parentale, une salle de bain, 2 WC, garage.
Cette annonce vous est proposée par ESCOURROU Marc - - NoRSAC: 880333471, Enregistré au Greffe du tribunal de commerce de Carcassonne

Référence: 12830
Honoraires à la charge du vendeur.
Barème des honoraires
Maison à CARCASSONNE
Maison à CARCASSONNE
Maison à CARCASSONNE
Maison à CARCASSONNE
Maison à CARCASSONNE
Maison à CARCASSONNE
Géorisques

Les informations sur les risques auxquels ce bien est exposé sont disponibles sur le site Géorisques : www.georisques.gouv.fr

Ce site est protégé par hCaptcha Politique de confidentialité et Conditions d’utilisation s’appliquent.

En poursuivant votre navigation sans modifier vos paramètres, vous acceptez l'utilisation de cookies susceptibles de réaliser des statistiques de visite. Cliquez ici pour plus d'informations