Bénéficiez des services de nos partenaires locaux soigneusement sélectionnés
pour vous accompagner dans votre parcours d'achat immobilier

Maison r+1 neuve à personnaliser, hors d’eau hors d’air, sur une belle parcelle arborée de 833 m² sans vis-à-vis

— Blanquefort 33290 —
254 880 €
88 m² / 867 m²
5 pièces

Nos partenaires locaux
Située à Blanquefort Caychac, découvrez cette maison neuve hors d'eau, hors d'air, à personnaliser selon vos envies et idéale pour réaliser votre projet de vie.

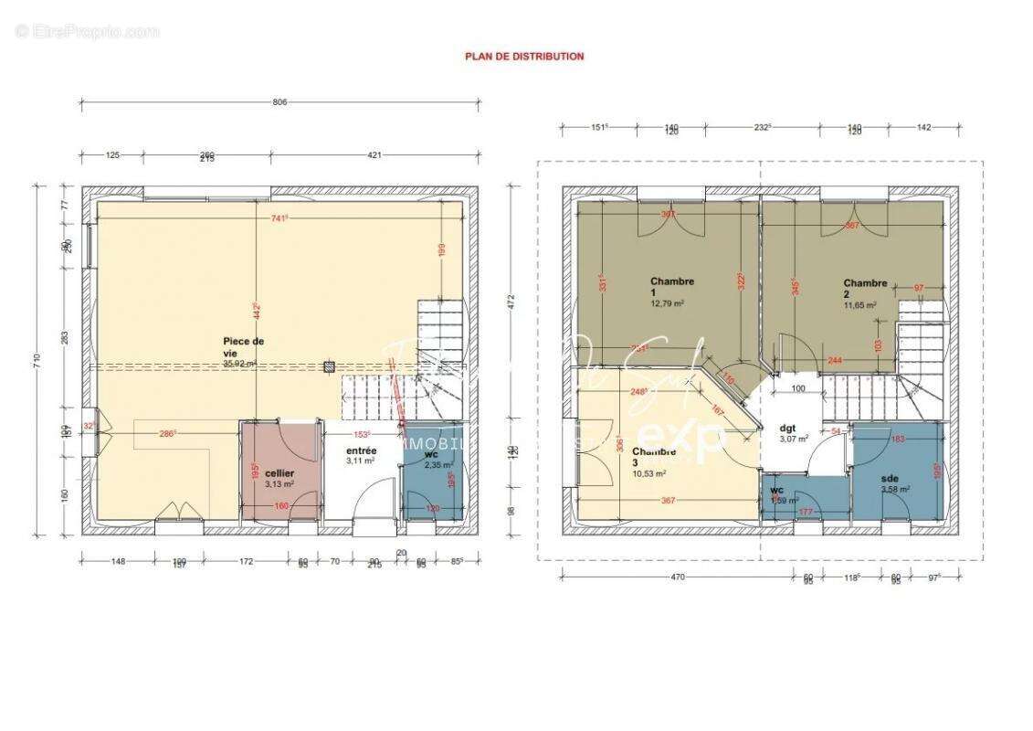
Au rez-de-chaussée, elle vous propose une pièce de vie lumineuse, en double exposition, avec un accès direct au jardin. Une cuisine ouverte, un cellier et un WC indépendant complètent ce niveau.

À l'étage, la partie nuit se compose de trois chambres, d'une salle d'eau et d'un second WC, offrant un espace fonctionnel pour accueillir toute la famille.

À l'extérieur, le terrain verdoyant et arboré de 833 m² vous permet d'imaginer de multiples aménagements : terrasse, piscine, coin détente, potager…
Deux places de stationnement privatives sont également prévues pour votre confort.

Cette maison neuve constitue une belle opportunité pour ceux qui souhaitent personnaliser leur futur lieu de vie, avec des prestations à venir et la liberté de concevoir chaque espace selon leurs envies.

Alors n'hésitez pas à me contacter pour plus d'informations ou pour organiser une visite et découvrir ce bien au fort potentiel ! 242,880 € Honoraires d'agence non inclus - Honoraires agence: 4.94%TTC Honoraires à la charge de l'acquéreur - Les informations sur les risques auxquels ce bien est exposé sont disponibles sur le site Géorisques : www.georisques.gouv.fr - Eduardo DE SUL - Agent commercial - EI - RSAC BORDEAUX 811 729 276
Voir plus

Référence: 86421336
Honoraires d'agence de 4.94% à la charge de l'acquéreur

Prêt immobilier

Vous souhaitez connaître votre capacité d’emprunt et trouver le meilleur crédit immobilier ?
Réaliser une simulation gratuite

Maison à BLANQUEFORT
Maison à BLANQUEFORT
Maison à BLANQUEFORT
Maison à BLANQUEFORT
Maison à BLANQUEFORT
Maison à BLANQUEFORT
Maison à BLANQUEFORT
Maison à BLANQUEFORT
Maison à BLANQUEFORT
Maison à BLANQUEFORT
Maison à BLANQUEFORT
Maison à BLANQUEFORT
Maison à BLANQUEFORT
Maison à BLANQUEFORT
Maison à BLANQUEFORT
Maison à BLANQUEFORT
Maison à BLANQUEFORT
Maison à BLANQUEFORT
Maison à BLANQUEFORT
Maison à BLANQUEFORT
Maison à BLANQUEFORT
Maison à BLANQUEFORT
Maison à BLANQUEFORT
Maison à BLANQUEFORT
Maison à BLANQUEFORT
Maison à BLANQUEFORT
Maison à BLANQUEFORT
Ce site est protégé par reCAPTCHA la Politique de confidentialité et les Conditions d’utilisation de Google s’appliquent.
Obtenir un prêt immobilier au meilleur taux ?

En poursuivant votre navigation sans modifier vos paramètres, vous acceptez l'utilisation de cookies susceptibles de réaliser des statistiques de visite. Cliquez ici pour plus d'informations