Bénéficiez des services de nos partenaires locaux soigneusement sélectionnés
pour vous accompagner dans votre parcours d'achat immobilier

Appartement t2 avec vue mer à vendre proche centre-ville, résidence avec ascenseur

— Bandol 83150 —
299 000 €
47 m²
2 pièces
parkingbalcon/terrasse

Nos partenaires locaux

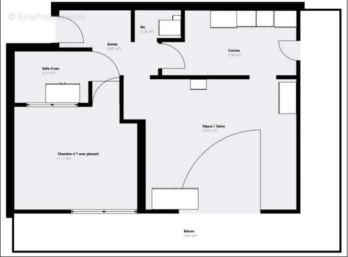
Dans une résidence soignée et bien entretenue, à seulement 650 m du centre-ville, découvrez ce beau Type 2 de 47 m2 situé au 2ème étage avec ascenseur.
Il se compose d’une entrée, d’un séjour lumineux avec cuisine aménagée, ouvrant sur une grande terrasse d’angle offrant une superbe vue mer. Vous y trouverez également une chambre avec placards intégrés, une salle d’eau et un WC séparé.
L’appartement est équipé de la climatisation réversible et de volets roulants électriques. Il est en excellent état général.
Une cave complète ce bien, ainsi qu’un parking collectif au sein de la résidence.
Voir plus

Référence: 7778FV
Bien en copropriété. Nombre de lots : 27. Charges de copropriété : 1154 €.
Honoraires d'agence de 3.28% à la charge de l'acquéreur
Barème des honoraires
DPE
A
B
C
D
E
F
G
GES
A
B
C
D
E
F
G

Prêt immobilier

Vous souhaitez connaître votre capacité d’emprunt et trouver le meilleur crédit immobilier ?
Réaliser une simulation gratuite

Appartement à BANDOL
Appartement à BANDOL
Appartement à BANDOL
Appartement à BANDOL
Appartement à BANDOL
Appartement à BANDOL
Appartement à BANDOL
Appartement à BANDOL
Appartement à BANDOL
Appartement à BANDOL
Appartement à BANDOL
Ce site est protégé par reCAPTCHA la Politique de confidentialité et les Conditions d’utilisation de Google s’appliquent.
Obtenir un prêt immobilier au meilleur taux ?

En poursuivant votre navigation sans modifier vos paramètres, vous acceptez l'utilisation de cookies susceptibles de réaliser des statistiques de visite. Cliquez ici pour plus d'informations