Bénéficiez des services de nos partenaires locaux soigneusement sélectionnés
pour vous accompagner dans votre parcours d'achat immobilier

Voir tous les partenaires locaux

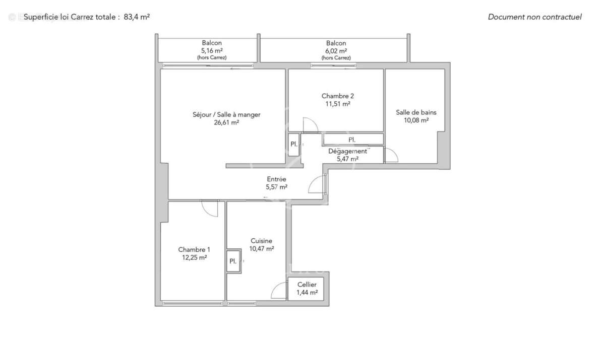
Paris 16e - parent de rosan - appartement à vendre - 3 pièces - 85.04m² carrez - 2 chambres - dernier étage - balcon 11,25 m² -

— Paris-16e 75016 —
1 090 000 €
85 m²
3 pièces
balcon/terrasseascenseur

Nos partenaires locaux
Situé dans une rue calme, au huitième et dernier étage par ascenseur d’un immeuble récent, cet appartement traversant de 85.04 m² loi Carrez bénéficie d’une luminosité exceptionnelle et de vues entièrement dégagées, notamment sur la tour Eiffel.

Seul sur le palier, il offre une confortable intimité.
Son plan, sans perte de place, comprend une entrée, un séjour et une chambre ouvrant sur un balcon de 11.25m² exposé plein sud, une seconde chambre, une cuisine entièrement équipée, une salle de bains avec toilettes ainsi que de nombreux rangements.

L’appartement est climatisé.

Une cave complète ce bien à fort potentiel.
Un local à vélos est accessible au rez-de-chaussée.
Un parking dans l’immeuble est proposé en option.
Gardien à demeure.

EXCLUSIVITÉ
Voir plus

Référence: 5697JASPEI
Barème des honoraires
DPE
A
B
C
D
E
F
G
GES
A
B
C
D
E
F
G

Prêt immobilier

Vous souhaitez connaître votre capacité d’emprunt et trouver le meilleur crédit immobilier ?
Réaliser une simulation gratuite

Appartement à PARIS-16E
Appartement à PARIS-16E
Appartement à PARIS-16E
Appartement à PARIS-16E
Appartement à PARIS-16E
Appartement à PARIS-16E
Appartement à PARIS-16E
Appartement à PARIS-16E
Appartement à PARIS-16E
Appartement à PARIS-16E
Appartement à PARIS-16E
Appartement à PARIS-16E
Appartement à PARIS-16E
Appartement à PARIS-16E
Appartement à PARIS-16E
Appartement à PARIS-16E
Appartement à PARIS-16E
Ce site est protégé par reCAPTCHA la Politique de confidentialité et les Conditions d’utilisation de Google s’appliquent.
Obtenir un prêt immobilier au meilleur taux ?

En poursuivant votre navigation sans modifier vos paramètres, vous acceptez l'utilisation de cookies susceptibles de réaliser des statistiques de visite. Cliquez ici pour plus d'informations