Bénéficiez des services de nos partenaires locaux soigneusement sélectionnés
pour vous accompagner dans votre parcours d'achat immobilier

Appartement 75m² à paris 17e arrondissement

— Paris-17e 75017 —
840 000 €
75 m²
4 pièces

Nos partenaires locaux
Batignolles, Rue Clairaut, proche des métros 13, 14 et de la ligne L du transilien « Pont Cardinet ».
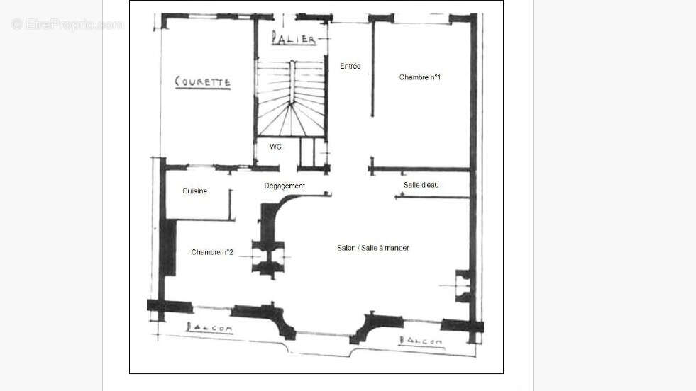
Au 5ème étage d'un immeuble de standing en pierre de taille sécurisé offrant une cour pavée entretenue. Découvrez un appartement à rénover avec balcon filant de 4 pièces au cachet tant convoité des immeubles haussmanniens, orné d'un parquet massif en point de Hongrie, de moulures florales et de cheminées.
Le bien est traversant sur rue et cour, il totalise une surface de 72.41 m² carrez plus 4.86 m² de balcon filant, et offre une hauteur sous plafond de 2m80 avec un plan modulable.
Il est composé d'un double séjour de 28.27 m² , éclairé par deux grandes portes fenêtres. Une chambre de 16.18 m², une deuxième chambre de 9.06 m², une cuisine indépendante de 3.60 m² (possibilité de cuisine US), une salle d'eau, un WC indépendant et une cave saine en sous sol.

Le DPE D promet une consommation énergétique raisonnable, comptez 235 € par mois de charge de copropriété et 1335€ de taxe foncière. Le chauffage et l'eau chaude sont individuels au gaz.

Emplacement recherché, Immeuble de standing, appartement lumineux, beaux volumes, charmant, sont les principaux atouts de ce bien rare.

Contactez nous: ERA Batignolles 97bis rue Legendre 75017 PARIS Tél: [Coordonnées masquées] / [Coordonnées masquées] / Mail: [Coordonnées masquées]
L'Etat des Risques et Pollution peut être consulté sur https://www.georisques.gouv.fr
Voir plus

Référence: 4463
DPE
A
B
C
D
E
F
G
GES
A
B
C
D
E
F
G

Prêt immobilier

Vous souhaitez connaître votre capacité d’emprunt et trouver le meilleur crédit immobilier ?
Réaliser une simulation gratuite

Appartement à PARIS-17E
Appartement à PARIS-17E
Appartement à PARIS-17E
Appartement à PARIS-17E
Appartement à PARIS-17E
Appartement à PARIS-17E
Appartement à PARIS-17E
Appartement à PARIS-17E
Appartement à PARIS-17E
Appartement à PARIS-17E
Appartement à PARIS-17E
Appartement à PARIS-17E
Ce site est protégé par reCAPTCHA la Politique de confidentialité et les Conditions d’utilisation de Google s’appliquent.
Obtenir un prêt immobilier au meilleur taux ?

En poursuivant votre navigation sans modifier vos paramètres, vous acceptez l'utilisation de cookies susceptibles de réaliser des statistiques de visite. Cliquez ici pour plus d'informations