Bénéficiez des services de nos partenaires locaux soigneusement sélectionnés
pour vous accompagner dans votre parcours d'achat immobilier

A vendre brest-centre appartement style loft 4 pièces 89m² avec caves

— Brest 29200 —
181 050 €
89 m²
4 pièces

Nos partenaires locaux
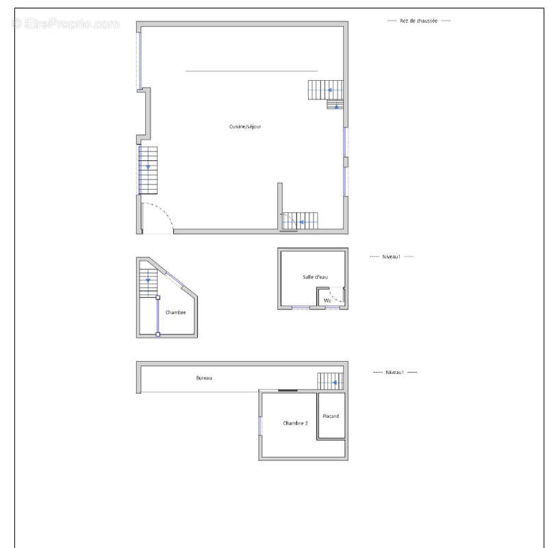
A vendre Brest-Centre Appartement style Loft 4 pièces 89m² avec caves Références PC00484-PFU Découvrez cet appartement unique de 4 pièces, situé au rez-de-chaussée d'un immeuble des années 50, au coeur de Brest-Centre. Avec une surface généreuse de 89 m², cet espace de vie lumineux offre un séjour cuisine spacieux de 61 m² exposé Sud, parfait pour accueillir vos moments de convivialité. L'appartement se compose de 2 chambres d'un espaces bureau supplémentaire, ainsi que d'une salle d'eau et d'un WC. Trois caves en sous-sol, dont une très grande. Les beaux volumes et l'esprit loft de cet appartement, avec un ancien bar toujours présent, en font un lieu de vie chaleureux et accueillant. Vous apprécierez également les trois caves qui accompagnent ce bien, idéales pour le rangement. Ce bien rare sur le marché offre un potentiel incroyable pour ceux qui souhaitent personnaliser leur espace. A proximité, vous trouverez de nombreux points d'intérêt, tels que l'Institut de Géoarchitecture et le Service Universitaire de Médecine Préventive, ainsi que plusieurs établissements scolaires comme le Collège privé Sainte-Anne et la Cité Scolaire de l'Harteloire. Ne manquez pas cette opportunité proposé au prix de 181050 euros. Contactez l'Agence Barraine IMMO Brest - Port pour organiser une visite ! (6.50 % honoraires TTC à la charge de l'acquéreur.) Copropriété de 16 lots - dont 7 lots habitation. (Pas de procédure en cours). Charges annuelles : 1728 euros.
Voir plus

Référence: PC00484
Bien en copropriété. Nombre de lots : 16. Charges de copropriété : 1728 €.
Honoraires d'agence de 6.5% à la charge de l'acquéreur
Barème des honoraires
DPE
A
B
C
D
E
F
G
GES
A
B
C
D
E
F
G

Prêt immobilier

Vous souhaitez connaître votre capacité d’emprunt et trouver le meilleur crédit immobilier ?
Réaliser une simulation gratuite

Appartement à BREST
Appartement à BREST
Appartement à BREST
Appartement à BREST
Appartement à BREST
Appartement à BREST
Appartement à BREST
Appartement à BREST
Appartement à BREST
Appartement à BREST
Appartement à BREST
Appartement à BREST
Appartement à BREST
Appartement à BREST
Appartement à BREST
Appartement à BREST
Appartement à BREST
Ce site est protégé par reCAPTCHA la Politique de confidentialité et les Conditions d’utilisation de Google s’appliquent.
Obtenir un prêt immobilier au meilleur taux ?

En poursuivant votre navigation sans modifier vos paramètres, vous acceptez l'utilisation de cookies susceptibles de réaliser des statistiques de visite. Cliquez ici pour plus d'informations