Bénéficiez des services de nos partenaires locaux soigneusement sélectionnés
pour vous accompagner dans votre parcours d'achat immobilier

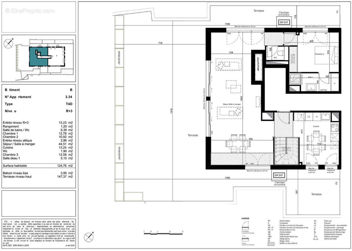
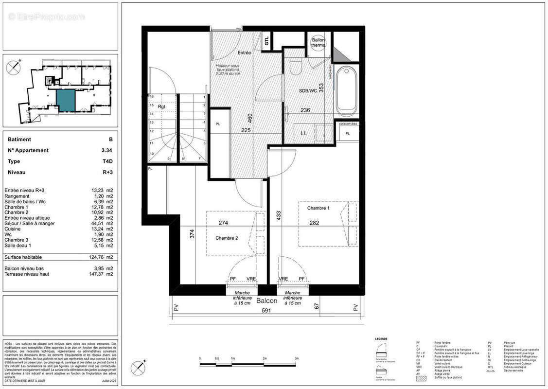
Appartement t4 duplex - 125m2 - quartier côte pavée

— Toulouse 31500 —
1 067 000 €
125 m²
4 pièces
parkingbalcon/terrasseascenseur

Nos partenaires locaux
Découvrez cet exceptionnel T4 duplex en dernier étage de 125m² en plein coeur de la Côte Pavée. Appréciez la vue imprenable depuis votre belle terrasse de 148m2 avec une exposition plein Sud, idéale pour vos moments de détente. Ce luxueux appartement offre un séjour-cuisine spacieux de 58m², trois grandes chambres, une salle d'eau et une salle de bain raffinée ainsi que deux wc suspendus. L'appartement dispose également d'un balcon pour l'une des chambres avec une exposition plein Ouest. Inclus, deux places de parking en sous-sol. Un bien rare alliant espace, élégance et emplacement prestigieux, offrant une qualité de vie incomparable. Belles Prestations : Parquets contrecollés, pompe à chaleur air-air, volets roulants électriques, peinture lisse, carrelage 60x60cm. D'autres appartements prestigieux sont disponibles, n'hésitez pas à nous contacter. [Coordonnées masquées] [Coordonnées masquées]
Voir plus

Barème des honoraires
DPE
A
B
C
D
E
F
G

Prêt immobilier

Vous souhaitez connaître votre capacité d’emprunt et trouver le meilleur crédit immobilier ?
Réaliser une simulation gratuite

Appartement à TOULOUSE
Appartement à TOULOUSE
Appartement à TOULOUSE
Appartement à TOULOUSE
Appartement à TOULOUSE
Appartement à TOULOUSE
Appartement à TOULOUSE
Appartement à TOULOUSE
Appartement à TOULOUSE
Appartement à TOULOUSE
Appartement à TOULOUSE
Appartement à TOULOUSE
Appartement à TOULOUSE
Appartement à TOULOUSE
Appartement à TOULOUSE
Ce site est protégé par reCAPTCHA la Politique de confidentialité et les Conditions d’utilisation de Google s’appliquent.
Obtenir un prêt immobilier au meilleur taux ?

En poursuivant votre navigation sans modifier vos paramètres, vous acceptez l'utilisation de cookies susceptibles de réaliser des statistiques de visite. Cliquez ici pour plus d'informations