Bénéficiez des services de nos partenaires locaux soigneusement sélectionnés
pour vous accompagner dans votre parcours d'achat immobilier

Maison 82m² à loches

— Loches 37600 —
207 000 €
82 m² / 202 m²
4 pièces
jardin

Nos partenaires locaux
Située dans la charmante ville de Loches (37600), cette maison bénéficie d'un emplacement stratégique proche des commodités essentielles telles que les commerces, les écoles et les transports en commun. Loches, ville riche en histoire avec son château médiéval et son ambiance authentique, offre un cadre de vie agréable et paisible pour ses habitants.

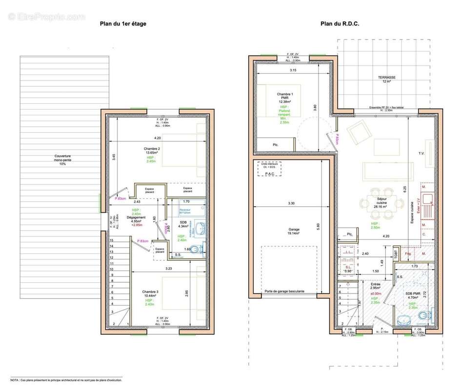
Cette maison de 82 m² sur un terrain de 202 m² propose un agencement optimal avec 4 pièces dont 3 chambres, idéal pour une famille. Au rez-de-chaussée, vous trouverez une entrée, un séjour ouvert sur la cuisine, 2 salles d'eau adaptée PMR et une chambre. À l'étage, un dégagement dessert deux chambres, une salle d'eau et un toilette. Un garage vient compléter ce bien offrant confort et fonctionnalité. Construction prévue pour 2026, cette maison représente une opportunité unique à Loches.

Les informations sur les risques auxquels ce bien est exposé sont disponibles sur le site Géorisques : www.georisques.gouv.fr
Prix de vente : 207 000 ¤
Honoraires charge vendeur

Contactez votre conseiller SAFTI : Philippe OLLIVIER, Tél. : [Coordonnées masquées], E-mail : [Coordonnées masquées] - EI - Agent commercial immatriculé au RSAC de TOURS sous le numéro 520 326 034.
Informations LOI ALUR :
Honoraires charge vendeur. (gedeon_26118_32131371)
Voir plus

Référence: 691741
Honoraires à la charge du vendeur.
Barème des honoraires

Prêt immobilier

Vous souhaitez connaître votre capacité d’emprunt et trouver le meilleur crédit immobilier ?
Réaliser une simulation gratuite

Photo 1 - Maison à LOCHES
Photo 1
Photo 2 - Maison à LOCHES
Photo 2
Photo 3 - Maison à LOCHES
Photo 3
Photo 4 - Maison à LOCHES
Photo 4
Ce site est protégé par reCAPTCHA la Politique de confidentialité et les Conditions d’utilisation de Google s’appliquent.
Obtenir un prêt immobilier au meilleur taux ?

En poursuivant votre navigation sans modifier vos paramètres, vous acceptez l'utilisation de cookies susceptibles de réaliser des statistiques de visite. Cliquez ici pour plus d'informations