Bénéficiez des services de nos partenaires locaux soigneusement sélectionnés
pour vous accompagner dans votre parcours d'achat immobilier

Voir tous les partenaires locaux

Bassin a flot - immeuble 2020 - parfait etat - terrasse au calme - parking - faibles charges - dpe b

— Bordeaux 33000 —
320 000 €
62 m²
3 pièces
parkingbalcon/terrasse

Nos partenaires locaux
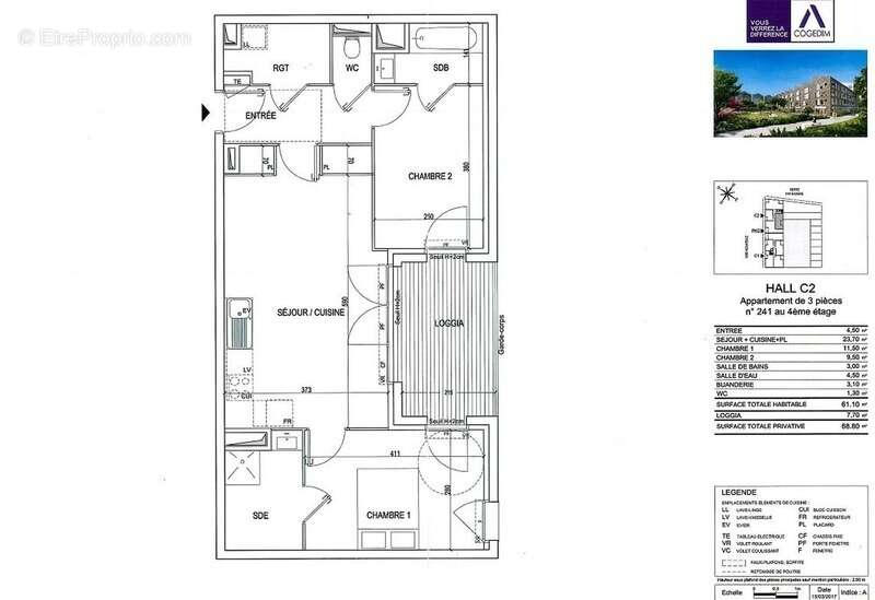
Optimhome vous présente ce beau 3 pièces de 60,28 m² loi Carrez au 4eme étage avec ascenseur d'une résidence récente (2020), encore sous garantie décennale.
Donnant sur le jardin intérieur de la copropriété, l'appartement est très CALME calme, sans AUCUN VIS-A-VIS.

En parfait état et très bien agencé (cf plan), il se compose d'une entrée desservant une pièce à vivre de 23 m² avec TERRASSE et cuisine équipée ouverte, une buanderie/cellier et un wc indépendant.
Côté nuit, l'appartement dispose de 2 belles chambres, l'une avec sa salle de bains privative et l'autre avec sa salle d'eau.
Enfin, le bien dispose d'une place de PARKING sécurisée en sous-sol, avec accès direct par ascenseur.

FAIBLES CHARGES, grâce à une conception aux normes RT 2012 et au chauffage collectif assuré par la chaufferie biomasse qui alimente tout le quartier Bassins à flot.
CE BIEN EST VENDU LOUÉ : location nue, loyer de 850€ CC, fin de bail en février 2027.

Situé au pied du bassin à flot, à 2 min à pied du Tram B "Cité du Vin" (centre ville en 10min - gare St Jean en 20min) et de tous les commerces de ce quartier d'avenir. Nombre de lots de la copropriété: 248, Montant moyen de la quote-part annuelle de charges (budget prévisionnel) : 1992€ soit 166€ par mois. Les honoraires d'agence sont à la charge de l'acquéreur, soit 3,25% TTC du prix hors honoraires.
Les informations sur les risques auxquels ce bien est exposé sont disponibles sur le site Géorisques : www. georisques. gouv. fr.

Contactez Romain BAUMARD Entrepreneur Individuel, Agent commercial OptimHome (RSAC N°901 553 610 Greffe de BORDEAUX) [Coordonnées masquées] (réf. 596171 )
Voir plus

Référence: 830039338589
Bien en copropriété. Nombre de lots : 248. Charges de copropriété : 166 €.
DPE
A
B
C
D
E
F
G
GES
A
B
C
D
E
F
G

Prêt immobilier

Vous souhaitez connaître votre capacité d’emprunt et trouver le meilleur crédit immobilier ?
Réaliser une simulation gratuite

Appartement à BORDEAUX
Appartement à BORDEAUX
Appartement à BORDEAUX
Appartement à BORDEAUX
Appartement à BORDEAUX
Appartement à BORDEAUX
Appartement à BORDEAUX
Appartement à BORDEAUX
Appartement à BORDEAUX
Appartement à BORDEAUX
Appartement à BORDEAUX
Appartement à BORDEAUX
Ce site est protégé par reCAPTCHA la Politique de confidentialité et les Conditions d’utilisation de Google s’appliquent.
Obtenir un prêt immobilier au meilleur taux ?

En poursuivant votre navigation sans modifier vos paramètres, vous acceptez l'utilisation de cookies susceptibles de réaliser des statistiques de visite. Cliquez ici pour plus d'informations