Bénéficiez des services de nos partenaires locaux soigneusement sélectionnés
pour vous accompagner dans votre parcours d'achat immobilier

Nouveau roubaix rue montgolfier - maison 1930 mitoyenne 4 chambres 115 m2 habitables

— Roubaix 59100 —
169 000 €
115 m² / 177 m²
6 pièces
balcon/terrassejardin

Nos partenaires locaux
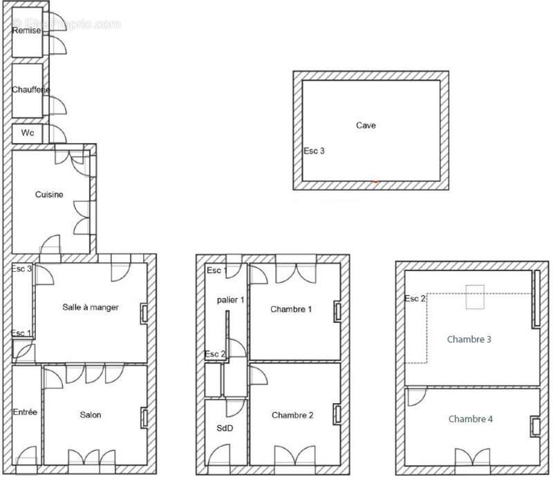
Fabrice PAYNE vous propose en exclusivité cette maison mitoyenne très saine et pleine de potentiel dans une jolie rue à proximité de la place du travail et du Boulevard de Lyon.
La maison fait 115 m2 habitables et 143 m2 utiles avec un jardin et une terrasse exposés ouest Nord-ouest.
Au RDC, vous y trouverez une double pièce salon salle à manger de 33 m2 avec cheminées, une cuisine de 12 m2, un couloir d'entrée, un WC et 2 dépendances.
Au 1er étage, se trouvent 2 chambres de 13 et 14 m2 et une salle de douche.
Au 2e étage, un palier cloisonnable de 21 m2 et une chambre de 14 m2 avec arrivées d'eau (lavabo).
Une cave de 16 m2 vient compléter le tout.
Le chauffage est au gaz, double vitrage et volets roulants motorisés en RDC.
Toiture refaite récemment.
La maison nécessite des travaux de remise aux normes (tout à l'égout partiel, électricité, cuisine, WC) et un certain rafraichissement pour un budget dont vous disposerez en sus du prix d'acquisition. Un agrandissement en RDC est possible.
Une vraie belle affaire ! Les honoraires d'agence sont à la charge de l'acquéreur, soit 5,63% TTC du prix hors honoraires.
Les informations sur les risques auxquels ce bien est exposé sont disponibles sur le site Géorisques : www. georisques. gouv. fr.

Contactez Fabrice PAYNE Entrepreneur Individuel, Agent commercial OptimHome (RSAC N°507 529 212 Greffe de LILLE) [Coordonnées masquées] (réf. 595403 )
Voir plus

Référence: 830038968564
DPE
A
B
C
D
E
F
G
GES
A
B
C
D
E
F
G

Prêt immobilier

Vous souhaitez connaître votre capacité d’emprunt et trouver le meilleur crédit immobilier ?
Réaliser une simulation gratuite

Maison à ROUBAIX
Maison à ROUBAIX
Maison à ROUBAIX
Maison à ROUBAIX
Maison à ROUBAIX
Maison à ROUBAIX
Maison à ROUBAIX
Maison à ROUBAIX
Maison à ROUBAIX
Maison à ROUBAIX
Maison à ROUBAIX
Maison à ROUBAIX
Maison à ROUBAIX
Maison à ROUBAIX
Maison à ROUBAIX
Ce site est protégé par reCAPTCHA la Politique de confidentialité et les Conditions d’utilisation de Google s’appliquent.
Obtenir un prêt immobilier au meilleur taux ?

En poursuivant votre navigation sans modifier vos paramètres, vous acceptez l'utilisation de cookies susceptibles de réaliser des statistiques de visite. Cliquez ici pour plus d'informations