Bénéficiez des services de nos partenaires locaux soigneusement sélectionnés
pour vous accompagner dans votre parcours d'achat immobilier

Asnieres / rer c les gresillons - 3 pieces - balcons - parking

— Asnieres-Sur-Seine 92600 —
450 000 €
60 m²
3 pièces
parkingascenseur

Nos partenaires locaux
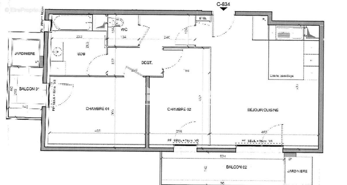
Opportunité rare ! Découvrez ce superbe appartement 3 pièces situé au 6ème étage d'un immeuble de Standing, offrant un cadre de vie exceptionnel et des prestations de qualité.

Cet appartement se distingue par sa luminosité et ses deux balcons privatifs offrant une vue imprenable et féerique sur la Tour Eiffel, idéale pour vos moments de détente ou vos dîners en plein air.

Ses atouts majeurs :

Vue emblématique : Profitez chaque jour de la majestueuse Tour Eiffel depuis vos balcons.
Immeuble récent : Bénéficiez des dernières normes de construction, d'une excellente isolation phonique et thermique, et de faibles charges de copropriété.
Double exposition : L'appartement est baigné de lumière naturelle tout au long de la journée.
Deux balcons : Un espace extérieur généreux pour chaque pièce de vie, agrandissant l'espace et offrant des vues variées.
Parking en sous-sol.
Prestations modernes : Matériaux de qualité, agencement optimisé et finitions soignées.
L'appartement se compose : d'une entrée avec rangements, un séjour lumineux avec accès à un premier balcon vue Tour Eiffel, une cuisine ouverte moderne et équipée, deux chambres confortables dont une avec accès à un second balcon, une salle de bain élégante et des WC séparés.

Idéal pour un couple, une petite famille ou comme pied-à-terre d'exception.

Ne laissez pas passer cette chance unique de vivre dans un cadre privilégié avec une vue d'exception ! Contactez-nous sans tarder pour organiser une visite.
Voir plus

Référence: 00509443
Bien en copropriété. Nombre de lots : 220. Charges de copropriété : 158 €.
Honoraires à la charge du vendeur.
Barème des honoraires
DPE
A
B
C
D
E
F
G
GES
A
B
C
D
E
F
G

Prêt immobilier

Vous souhaitez connaître votre capacité d’emprunt et trouver le meilleur crédit immobilier ?
Réaliser une simulation gratuite

Appartement à ASNIERES-SUR-SEINE
Appartement à ASNIERES-SUR-SEINE
Appartement à ASNIERES-SUR-SEINE
Appartement à ASNIERES-SUR-SEINE
Appartement à ASNIERES-SUR-SEINE
Appartement à ASNIERES-SUR-SEINE
Appartement à ASNIERES-SUR-SEINE
Appartement à ASNIERES-SUR-SEINE
Appartement à ASNIERES-SUR-SEINE
Appartement à ASNIERES-SUR-SEINE
Appartement à ASNIERES-SUR-SEINE
Appartement à ASNIERES-SUR-SEINE
Appartement à ASNIERES-SUR-SEINE
Appartement à ASNIERES-SUR-SEINE
Appartement à ASNIERES-SUR-SEINE
Ce site est protégé par reCAPTCHA la Politique de confidentialité et les Conditions d’utilisation de Google s’appliquent.
Obtenir un prêt immobilier au meilleur taux ?

En poursuivant votre navigation sans modifier vos paramètres, vous acceptez l'utilisation de cookies susceptibles de réaliser des statistiques de visite. Cliquez ici pour plus d'informations