Pas de commerce à Sainte-Verge pour le moment. Découvrez dès maintenant les commerces dans le département Deux-Sèvres.
Bénéficiez des services de nos partenaires locaux soigneusement sélectionnés
pour vous accompagner dans votre parcours d'achat immobilier

Commerce 327m² à le bouscat

— Le Bouscat 33110 —
1 132 083 €
327 m²
parkingascenseur

Nos partenaires locaux
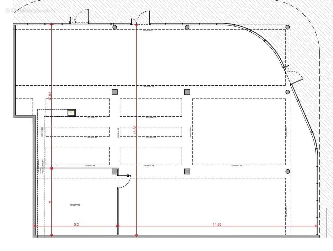
? À VENDRE – Local commercial de 326 m² dans une zone dynamique du Bouscat

Découvrez ce spacieux local commercial de 326 m², idéalement implanté au coeur d'une zone commerciale attractive, à proximité immédiate des zones d'habitation. Cet emplacement stratégique offre un fort potentiel de visibilité et de fréquentation.

Le local bénéficie d'un linéaire de vitrine de plus de 30 mètres, offrant une excellente exposition et une grande luminosité naturelle. Sa belle hauteur sous plafond permet une modularité d'aménagement adaptée à tous types d'activités : commerce, showroom, services ou professions libérales.

Trois places de stationnement privées complètent ce bien, un atout majeur pour la clientèle et le personnel.

? Localisation : Le Bouscat – zone commerciale proche des habitations? Surface : 326 m²? Vitrine : + de 30 mètres?? Hauteur sous plafond : importante? Stationnement : 3 places privatives? Prix de vente : 1 132 083 € HT?? Frais de notaire réduits

Un bien rare offrant une excellente visibilité dans un secteur recherché, idéal pour implanter ou développer votre activité.

Honoraires à la charge du vendeur. Dans une copropriété de 25 lots. Aucune procédure n'est en cours. DPE en cours. Les informations sur les risques auxquels ce bien est exposé sont disponibles sur le site Géorisques : georisques.gouv.fr.
Voir plus

Référence: VP100-RHPATRI
Bien en copropriété. Nombre de lots : 25.
Honoraires à la charge du vendeur.
Barème des honoraires

Prêt immobilier

Vous souhaitez connaître votre capacité d’emprunt et trouver le meilleur crédit immobilier ?
Réaliser une simulation gratuite

Commerce à LE BOUSCAT
Commerce à LE BOUSCAT
Commerce à LE BOUSCAT
Commerce à LE BOUSCAT
Commerce à LE BOUSCAT
Commerce à LE BOUSCAT
Ce site est protégé par reCAPTCHA la Politique de confidentialité et les Conditions d’utilisation de Google s’appliquent.
Obtenir un prêt immobilier au meilleur taux ?

En poursuivant votre navigation sans modifier vos paramètres, vous acceptez l'utilisation de cookies susceptibles de réaliser des statistiques de visite. Cliquez ici pour plus d'informations