Bénéficiez des services de nos partenaires locaux soigneusement sélectionnés
pour vous accompagner dans votre parcours d'achat immobilier

Maison 213m² à ambares-et-lagrave

— Ambares-Et-Lagrave 33440 —
545 000 €
213 m² / 3 685 m²
7 pièces
jardinpiscine

Nos partenaires locaux
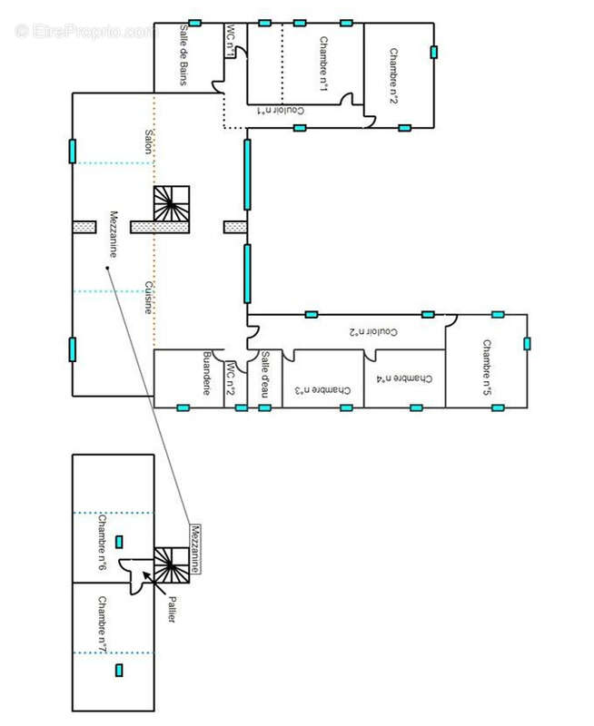
Iad France - Catherine Baudet vous propose : Sublime Maison Familiale de 213 m² sur un Vaste Terrain à Ambarès-et-Lagrave
Cette résidence offre un espace de vie généreux et des prestations de qualité pour le confort de toute la famille.

Au rez-de-chaussée, vous trouverez un vaste séjour lumineux de 87,66 m² permettant d'accueillir vos moments de convivialité en famille ou entre amis avec sa cuisine ouverte. Également au rez-de-chaussée, vous trouverez cinq chambres dont une avec salle d'eau privative et une buanderie.
À l'étage nous avons 2 chambres supplémentaires.

À l'extérieur, un vaste terrain de 3685 m² vous permet de profiter de la nature environnante et de passer d'agréables moments en extérieur. Une piscine apporte une touche de fraîcheur lors des journées ensoleillées.

Les équipements de cette maison incluent la fibre optique pour rester connecté en tout temps et un système de climatisation réversible pour un confort thermique optimal.
Située dans un quartier résidentiel calme, cette propriété offre un cadre de vie paisible et familial tout en restant proche des commodités et des axes de transport.

Ne manquez pas cette opportunité rare d'acquérir une maison spacieuse et fonctionnelle dans un environnement privilégié.
Contactez-moi pour organiser une visite dès maintenant !

Honoraires d'agence à la charge du vendeur.
Information d'affichage énergétique sur ce bien : classe ENERGIE C indice 177 et classe CLIMAT A indice 5. Les informations sur les risques auxquels ce bien est exposé, y compris l'obligation légale de débroussaillement, sont disponibles sur le site Géorisques : http://www.georisques.gouv.fr.
La présente annonce immobilière a été rédigée sous la responsabilité éditoriale de Mme Catherine Baudet mandataire indépendant en immobilier (sans détention de fonds), agent commercial de la SAS I@D France immatriculé au RSAC de BORDEAUX sous le numéro 849875398, titulaire de la carte de démarchage immobilier pour le compte de la société I@D France SAS.
Informations LOI ALUR :
Honoraires charge vendeur. (gedeon_6727_32139336)
Voir plus

Référence: 1879344
Honoraires à la charge du vendeur.
DPE
A
B
C
D
E
F
G
GES
A
B
C
D
E
F
G

Prêt immobilier

Vous souhaitez connaître votre capacité d’emprunt et trouver le meilleur crédit immobilier ?
Réaliser une simulation gratuite

Photo 1 - Maison à AMBARES-ET-LAGRAVE
Photo 1
Photo 2 - Maison à AMBARES-ET-LAGRAVE
Photo 2
Photo 3 - Maison à AMBARES-ET-LAGRAVE
Photo 3
Photo 4 - Maison à AMBARES-ET-LAGRAVE
Photo 4
Photo 5 - Maison à AMBARES-ET-LAGRAVE
Photo 5
Photo 6 - Maison à AMBARES-ET-LAGRAVE
Photo 6
Photo 7 - Maison à AMBARES-ET-LAGRAVE
Photo 7
Photo 8 - Maison à AMBARES-ET-LAGRAVE
Photo 8
Photo 9 - Maison à AMBARES-ET-LAGRAVE
Photo 9
Ce site est protégé par reCAPTCHA la Politique de confidentialité et les Conditions d’utilisation de Google s’appliquent.
Obtenir un prêt immobilier au meilleur taux ?

En poursuivant votre navigation sans modifier vos paramètres, vous acceptez l'utilisation de cookies susceptibles de réaliser des statistiques de visite. Cliquez ici pour plus d'informations