Bénéficiez des services de nos partenaires locaux soigneusement sélectionnés
pour vous accompagner dans votre parcours d'achat immobilier

5p terrasse, dernier étage, piscine et garage –costière

— Nice 06000 —
399 000 €
99 m²
5 pièces
parkingbalcon/terrassepiscine

Nos partenaires locaux
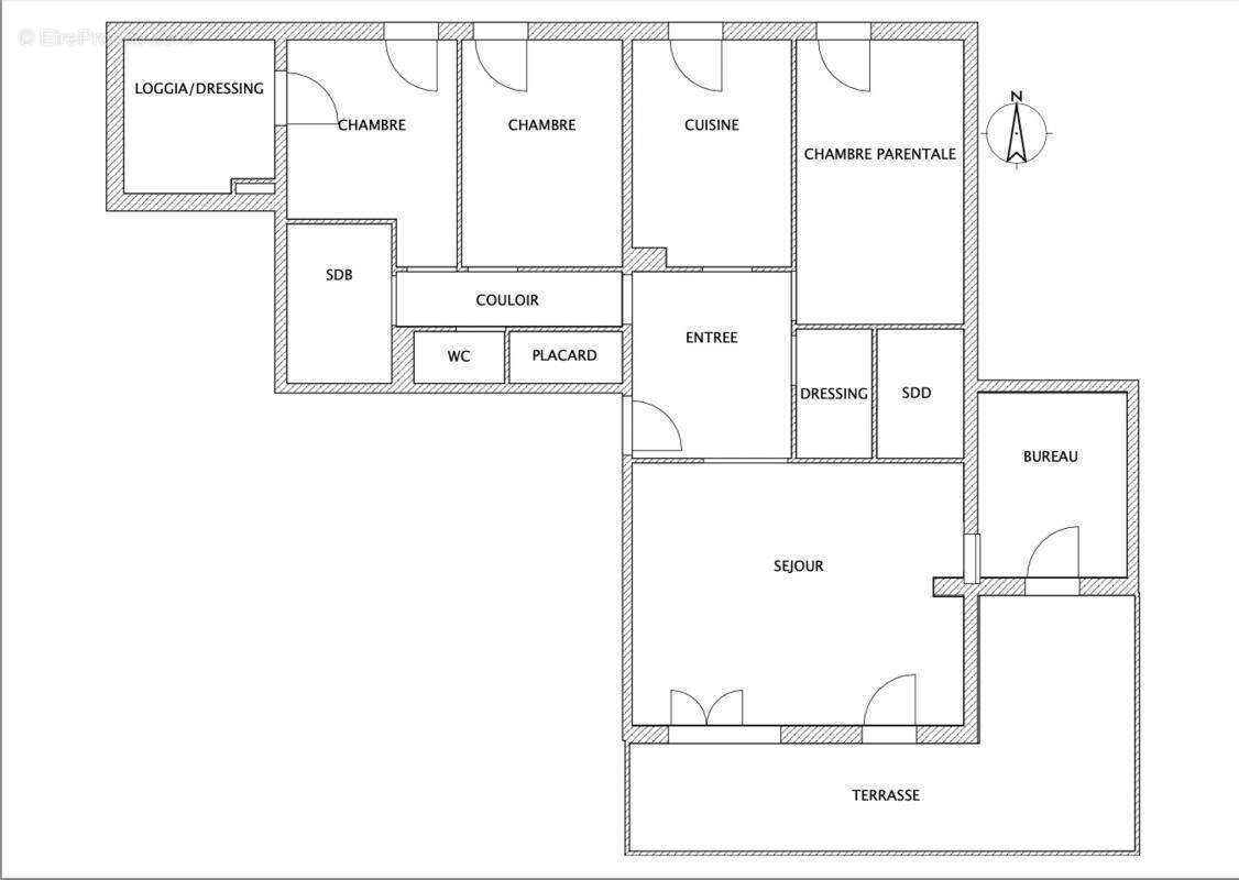
Vaste 5 pièces traversant avec terrasse, dernier étage, piscine et garage – Chemin de la Costière

Au dernier étage d'une résidence avec piscine, découvrez ce superbe appartement traversant de 100 m², lumineux et plein de potentiel.
Son plan en étoile offre une distribution harmonieuse :

Un spacieux séjour au plafond cathédrale, baigné de lumière, ouvrant sur une agréable terrasse de 20 m², parfaite pour vos moments de détente.

Attenant au séjour, un bureau modulable donnant également sur la terrasse, idéal pour le télétravail ou une 4ᵉ chambre ou encore transformé en cuisine.

Une cuisine indépendante (pouvant devenir une 4ᵉ chambre).

Une suite parentale avec salle d'eau privative.

Un espace nuit séparé composé de deux chambres supplémentaires, dont une avec loggia (actuellement aménagée en dressing), une salle de bains et des WC indépendants.

Cet appartement à rafraîchir offre de nombreuses possibilités d'aménagement selon vos goûts et besoins.
Bien qu'il soit au 3ème étage sans ascenseur, vous ne monterez qu'un étage depuis l'entrée de l'immeuble pour y acceder.
Un cellier, un garage et stationnement collectif complètent ce bien rare sur le secteur.

Possibilité d'un 2ᵉ garage en sus du prix
Voir plus

Référence: 26-592
Bien en copropriété. Nombre de lots : 89.
DPE
A
B
C
D
E
F
G
GES
A
B
C
D
E
F
G

Prêt immobilier

Vous souhaitez connaître votre capacité d’emprunt et trouver le meilleur crédit immobilier ?
Réaliser une simulation gratuite

Appartement à NICE
Appartement à NICE
Appartement à NICE
Appartement à NICE
Appartement à NICE
Appartement à NICE
Appartement à NICE
Appartement à NICE
Appartement à NICE
Appartement à NICE
Appartement à NICE
Appartement à NICE
Appartement à NICE
Ce site est protégé par reCAPTCHA la Politique de confidentialité et les Conditions d’utilisation de Google s’appliquent.
Obtenir un prêt immobilier au meilleur taux ?

En poursuivant votre navigation sans modifier vos paramètres, vous acceptez l'utilisation de cookies susceptibles de réaliser des statistiques de visite. Cliquez ici pour plus d'informations