Bénéficiez des services de nos partenaires locaux soigneusement sélectionnés
pour vous accompagner dans votre parcours d'achat immobilier

Maison à vendre 4 pièces sampans (39)

— Sampans 39100 —
360 000 €
124 m²
4 pièces

Nos partenaires locaux
Sophia et Mikael Thomas vous proposent en exclusivité

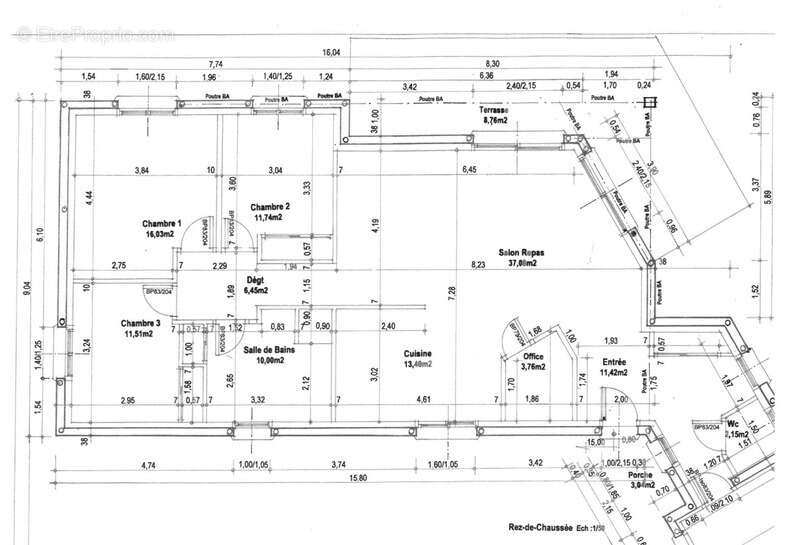
Sur la commune recherchée de Sampans, découvrez cette maison contemporaine, conçue pour allier élégance, confort et performance énergétique.

D'une surface habitable de 124 m², elle dévoile une vaste pièce de vie de 50 m², regroupant salon, salle à manger et cuisine dans un espace lumineux et convivial, ouvert sur le jardin.
L'espace nuit propose trois chambres spacieuses et une salle d'eau raffinée, équipée d'une douche à l'italienne, d'une vasque sur meuble et d'un sèche-serviettes, pour un confort au quotidien.

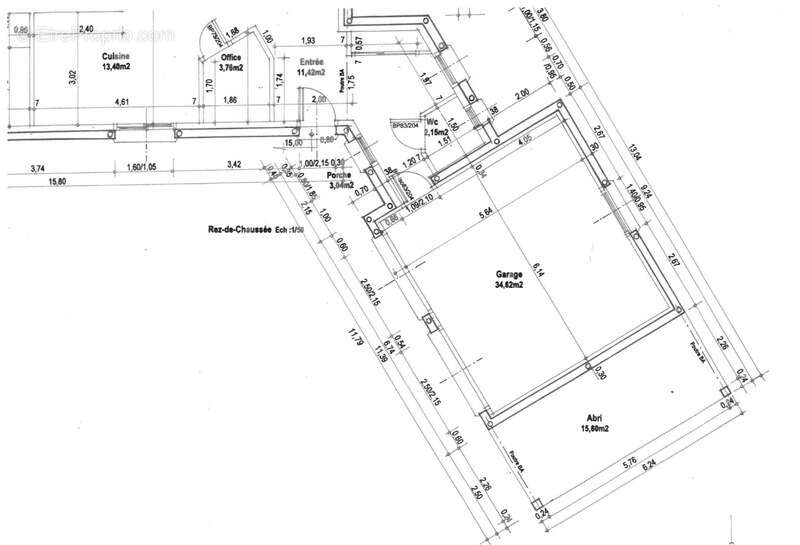
Un double garage de 33 m² vient compléter cet ensemble, offrant praticité et espace de rangement.

Édifiée sur un terrain clos d'environ 1000 m², la propriété bénéficiera d'un portail électrique et d'un environnement calme et résidentiel.

Construite selon les normes énergétiques RE 2020, la maison profitera d'un chauffage par pompe à chaleur avec plancher chauffant, garantissant bien-être et efficacité énergétique.

Si un acquéreur se positionne, il pourra personnaliser certains éléments de finition, notamment le carrelage et la faïence, selon ses goûts et envies.
Il aura également la possibilité de suivre l'avancée du chantier jusqu'à l'achèvement des travaux prévu pour avril 2026.

Un bien rare, où modernité, qualité des prestations et douceur de vivre se rencontrent. Les honoraires sont à la charge du vendeur.
Les informations sur les risques auxquels ce bien est exposé sont disponibles sur le site Géorisques : www. georisques. gouv. fr.

Contactez Sophia THOMAS Entrepreneur Individuel, Agent commercial OptimHome (RSAC N°979 162 500 Greffe de LONS LE SAUNIER) [Coordonnées masquées] (réf. 593859 )
Voir plus

Référence: 830038957306
Honoraires à la charge du vendeur.

Prêt immobilier

Vous souhaitez connaître votre capacité d’emprunt et trouver le meilleur crédit immobilier ?
Réaliser une simulation gratuite

Maison à SAMPANS
Maison à SAMPANS
Maison à SAMPANS
Maison à SAMPANS
Maison à SAMPANS
Maison à SAMPANS
Maison à SAMPANS
Maison à SAMPANS
Maison à SAMPANS
Maison à SAMPANS
Maison à SAMPANS
Ce site est protégé par reCAPTCHA la Politique de confidentialité et les Conditions d’utilisation de Google s’appliquent.
Obtenir un prêt immobilier au meilleur taux ?

En poursuivant votre navigation sans modifier vos paramètres, vous acceptez l'utilisation de cookies susceptibles de réaliser des statistiques de visite. Cliquez ici pour plus d'informations