Bénéficiez des services de nos partenaires locaux soigneusement sélectionnés
pour vous accompagner dans votre parcours d'achat immobilier

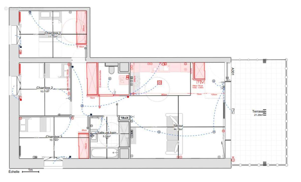
Appartement 82m² à lyon-7e

— Lyon-7e 69007 —
499 000 €
82 m²
4 pièces
parkingbalcon/terrasse

Nos partenaires locaux
En exclusivité ! Encore un nouveau bien à vendre chez Novéo Immo !

LYON 7 – Appartement - 82m2.

Secteur : Jean-Jaurès - Girondins

Dans un lotissement résidentiel recherché, à proximité immédiate de toutes commodités et parfaitement desservi par les transports (Métro B), découvrez un appartement d'exception où chaque détail a été pensé pour conjuguer confort, fonctionnalité et élégance.

Avec une superficie Carrez de 82,06 m², cet appartement de 4 pièces offre des volumes généreux et baignés de lumière. Dès l'entrée, vous serez séduit par la pièce de vie de 44 m², regroupant séjour et cuisine ouverte, idéale pour partager des moments conviviaux en famille ou entre amis.

Prolongé par une belle terrasse de 21 m², l'espace de vie profite d'une ouverture harmonieuse vers l'extérieur. Côté nuit, trois chambres accueillantes créent de véritables cocons pour chacun. La salle de bain, élégante et fonctionnelle, est équipée d'une baignoire.

L'appartement répond aux normes PMR et dispose de nombreux atouts supplémentaires : un cellier, un garage électrifié ainsi que de multiples rangements. Sa luminosité exceptionnelle vient parfaire l'ensemble.

Ce bien, en parfait état, ne nécessite d'aucuns travaux. Il est également éligible au Prêt à Taux Zéro (PTZ), un avantage financier non négligeable pour faciliter votre acquisition.

Cet appartement n'attend plus que ses nouveaux propriétaires pour écrire la suite de son histoire.

Si vous recherchez un lieu de vie moderne, lumineux et serein, cet appartement est fait pour vous.

Montant moyen annuel de la quote-part de charges courantes (estimée) : 19200 €/ an, soit env. 160€/mois.
DPE : Conso énergétique B (51kW), Emission GESB (6kgec) en cours

Prix du bien: 499 000€ HAI (honoraires inclus à charge de l'acquéreur)

Prix hors honoraires : 479 807€

Honoraires TTC : 19 193€

Honoraires à la charge de : l'acquéreur

Une visite virtuelle/vidéo est systématiquement proposée en visio avant une visite réelle du bien. + d'informations auprès de M. ROUERS Xavier (E.I) O763 3O 7O34.

Ref annonce : IA25-XARO-02

INFORMATIONS LÉGALES:

Le barème des honoraires agence, et les mentions légales complètes sont disponibles sur notre site internet dans la rubrique /nos honoraires/.

Novéo Immo Lyon (SAS au capital de 10 000 €). Annonce relative au mandat de vente N°84. Transactions immobilières sans perception de fonds - SIRET : 910 642 263 à 00016 RCS de Strasbourg APE 7022Z - CPI N°67[Coordonnées masquées]00 016 Délivrée par la CCI d'Alsace Eurométropole

La présente annonce immobilière a été rédigée sous la responsabilité éditoriale de M. ROUERS Xavier, Agent Commercial mandataire en immobilier immatriculé au Registre Spécial des Agents Immobilier immatriculé au Tribunal de Commerce de LYON sous le numéro 905 202 560.
Voir plus

Référence: 7214842

Prêt immobilier

Vous souhaitez connaître votre capacité d’emprunt et trouver le meilleur crédit immobilier ?
Réaliser une simulation gratuite

Appartement à LYON-7E
Appartement à LYON-7E
Appartement à LYON-7E
Ce site est protégé par reCAPTCHA la Politique de confidentialité et les Conditions d’utilisation de Google s’appliquent.
Obtenir un prêt immobilier au meilleur taux ?

En poursuivant votre navigation sans modifier vos paramètres, vous acceptez l'utilisation de cookies susceptibles de réaliser des statistiques de visite. Cliquez ici pour plus d'informations