Maison en pierre de 93m2

— Saint-Vran 22230 —
134 500 €
92 m² / 1 966 m²
4 pièces
parkingjardin

Sous-Offre et En Exclusivité à Saint-Vran, au coeur d'un environnement calme et verdoyant, cette charmante maison en pierre de 93 m2 habitables vous offre un cadre de vie paisible sur une parcelle d'environ 2 000 m2.
Idéale pour ceux qui recherchent la tranquillité sans être totalement isolés, elle se trouve à 60 mètres de la première habitation voisine. Vous profiterez ainsi d'un cadre bucolique où le seul bruit alentour sera le beuglement des vaches, vos plus proches voisines.
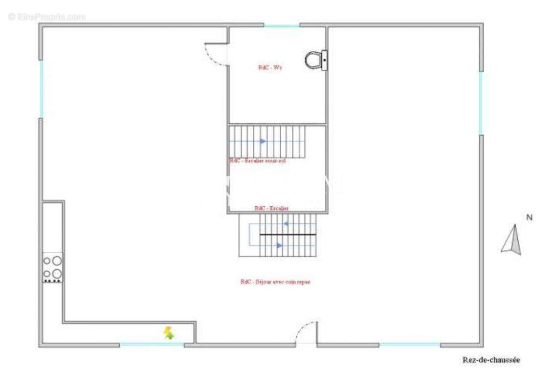
Au rez-de-chaussée, vous découvrirez un salon chaleureux équipé d'un poêle à bois, ouvert sur une cuisine conviviale et une salle à manger. Des WC indépendants complètent ce niveau.
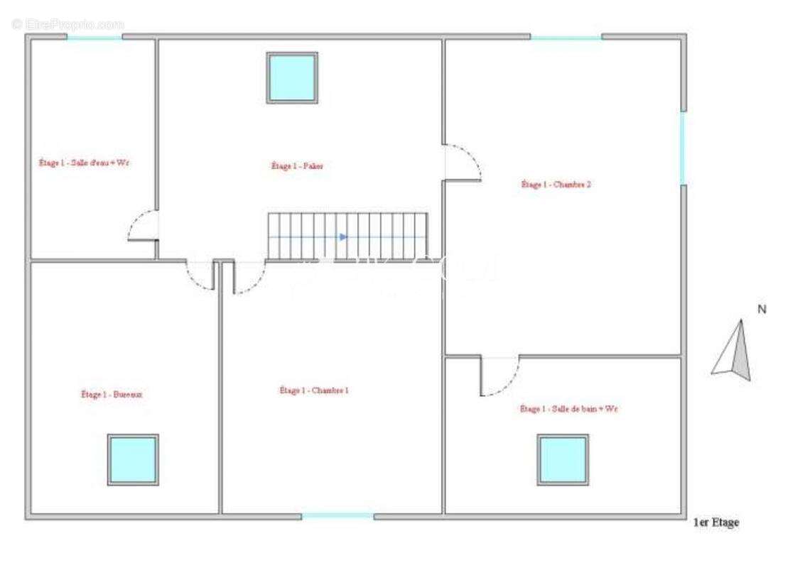
À l'étage, un palier dessert trois chambres, dont une qui bénéficie de sa propre salle de bain privative. Vous y trouverez également une salle d'eau supplémentaire avec WC.
La maison dispose d'un sous-sol complet.
À l'extérieur, un hangar de 65 m2 comprend deux parties fermées : l'une idéale pour stocker du matériel et l'autre pouvant servir de chenil.
Une serre vous permettra également de cultiver fleurs et légumes en toute saison.
Le jardin, entièrement clos et joliment paysagé, abrite notamment des noyers et un noisetier. La parcelle est également équipée d'un puits. Côté confort, la maison est chauffée grâce à une chaudière au fioul complétée par un poêle à bois, l'eau chaude est produite par un ballon électrique traditionnel.
Toiture de la maison refaite en 2022 - Assainissement est individuel.
Vidéo de présentation disponible sur demande -
Les honoraires sont à la charge de l'acquéreur. Pour découvrir cette maison, contactez votre conseillère, Stéphanie MIOSSEC EI au [Coordonnées masquées] - RSAC de St Brieuc no 877 562 496 - 3%.COM immobilier : réseau national à honoraires réduits à 3% TTC -
Les informations sur les risques auxquels ce bien est exposé sont disponibles sur le site Géorisques : www.georisques.gouv.fr - Annonce rédigée et publiée par un Agent Mandataire -
Voir plus

Référence: 271_V3550062363
Honoraires d'agence de 3.46% à la charge de l'acquéreur
DPE
A
B
C
D
E
F
G
GES
A
B
C
D
E
F
G

Prêt immobilier

Vous souhaitez connaître votre capacité d’emprunt et trouver le meilleur crédit immobilier ?
Réaliser une simulation gratuite

Maison à SAINT-VRAN
Maison à SAINT-VRAN
Maison à SAINT-VRAN
Maison à SAINT-VRAN
Maison à SAINT-VRAN
Maison à SAINT-VRAN
Maison à SAINT-VRAN
Maison à SAINT-VRAN
Maison à SAINT-VRAN
Maison à SAINT-VRAN
Maison à SAINT-VRAN
Maison à SAINT-VRAN
Maison à SAINT-VRAN
Maison à SAINT-VRAN
Maison à SAINT-VRAN
Maison à SAINT-VRAN
Maison à SAINT-VRAN
Maison à SAINT-VRAN
Maison à SAINT-VRAN
Maison à SAINT-VRAN
Maison à SAINT-VRAN
Maison à SAINT-VRAN
Maison à SAINT-VRAN
Ce site est protégé par reCAPTCHA la Politique de confidentialité et les Conditions d’utilisation de Google s’appliquent.
Obtenir un prêt immobilier au meilleur taux ?

En poursuivant votre navigation sans modifier vos paramètres, vous acceptez l'utilisation de cookies susceptibles de réaliser des statistiques de visite. Cliquez ici pour plus d'informations