3%.com à hangenbieten - maison d'habitation d'environ 118 m

— Hangenbieten 67980 —
288 000 €
118 m²
5 pièces

3%.COM à HANGENBIETEN - Maison d'habitation d'environ 118 m2 à rénover.
Une dépendance, un espace atelier et une cour complètent ce bien.
Le tout sur une parcelle de 4,65 ares.

IDÉAL FAMILLE OU ARTISAN !

Vous recherchez un bien à rénover, à façonner selon vos envies, tout en profitant de la qualité de vie d'un village paisible ?

Alors n'hésitez plus et venez découvrir ce bien plein de potentiel !

Composition :
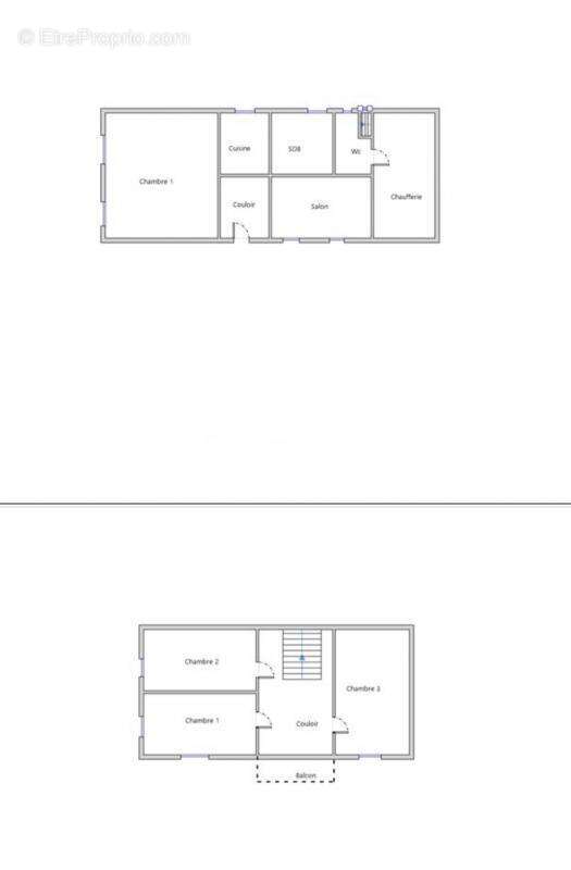
Au rez-de-chaussée :
- 1 entrée / couloir.
- 1 cuisine.
- 1 salon / séjour d'environ 23 m2.
- 1 toilette séparé.
- 1 salle d'eau.
- 1 salle à manger ou chambre d'environ 22 m2.

Au premier étage :
- 3 chambres (13 m2, 10 m2, 17 m2).
- 1 accès au comble.

Extérieur :
- 1 cave.
- 1 espace atelier.
- 1 grande dépendance.

Autres informations :
- Environnement calme.
- La grande dépendance offre de multiples possibilités (rangements, atelier, stockage, etc.).
- Grande cour permettant d'accueillir plusieurs véhicules.
- Bien à rénover (isolation, chauffage, électricité, cuisine, etc.).
- Fenêtres double vitrage PVC, volets bois.
- Chauffage + eau chaude au fioul (chaudière).
- DPE : G.
- Taxe foncière : 601EUR

-- Principales distances :
Truchtersheim : 23 min, 15 km.
Oberhausbergen : 16 min, 9 km.
Strasbourg : 20 min, 16 km.
Geispolsheim : 14 min, 10 km.

Contactez Célia au [Coordonnées masquées]
Du lundi au samedi de 9h00 à 19h00.
Agent Commercial en Immobilier, inscrit au RSAC Strasbourg No 809 126 998.

Agence ROTH IMMOBILIER, RCS 803 863 638, franchisé 3%.COM.
Réseau national à honoraires réduits : 3 % TTC.
Annonce proposée par un agent commercial.
Les informations sur les risques auxquels ce bien est exposé sont disponibles sur le site Géorisques : www.georisques.gouv.fr - Annonce rédigée et publiée par un Agent Mandataire -
Voir plus

Référence: 264_V3480062329
Honoraires d'agence de 2.86% à la charge de l'acquéreur
DPE
A
B
C
D
E
F
G
GES
A
B
C
D
E
F
G

Prêt immobilier

Vous souhaitez connaître votre capacité d’emprunt et trouver le meilleur crédit immobilier ?
Réaliser une simulation gratuite

Maison à HANGENBIETEN
Maison à HANGENBIETEN
Maison à HANGENBIETEN
Maison à HANGENBIETEN
Maison à HANGENBIETEN
Maison à HANGENBIETEN
Maison à HANGENBIETEN
Maison à HANGENBIETEN
Maison à HANGENBIETEN
Maison à HANGENBIETEN
Maison à HANGENBIETEN
Maison à HANGENBIETEN
Maison à HANGENBIETEN
Maison à HANGENBIETEN
Maison à HANGENBIETEN
Maison à HANGENBIETEN
Maison à HANGENBIETEN
Maison à HANGENBIETEN
Maison à HANGENBIETEN
Maison à HANGENBIETEN
Maison à HANGENBIETEN
Ce site est protégé par reCAPTCHA la Politique de confidentialité et les Conditions d’utilisation de Google s’appliquent.
Obtenir un prêt immobilier au meilleur taux ?

En poursuivant votre navigation sans modifier vos paramètres, vous acceptez l'utilisation de cookies susceptibles de réaliser des statistiques de visite. Cliquez ici pour plus d'informations