Pas de parking à Chaumes-En-Brie pour le moment. Découvrez dès maintenant les parkings dans le département Seine-et-Marne.
Bénéficiez des services de nos partenaires locaux soigneusement sélectionnés
pour vous accompagner dans votre parcours d'achat immobilier

Maison de 8 pièces de 153 m² située à vitrolles

— Vitrolles 13127 —
500 000 €
153 m² / 655 m²
8 pièces
balcon/terrassepiscine

Nos partenaires locaux
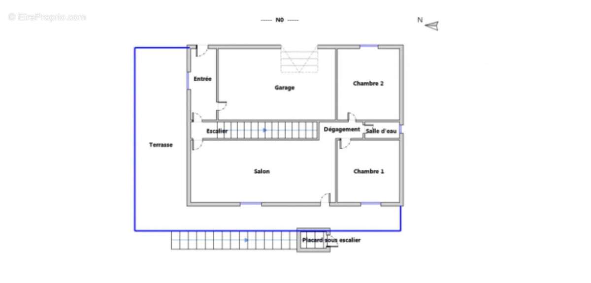
Découvrez cette spacieuse maison de 8 pièces de 153 m², 5 chambres sur un terrain de 655 m2 idéale pour une grande famille ! vous apprécierez la luminosité traversante de la maison des espaces et le confort que procure la présence d'une piscine et d'une terrasse, parfaite pour profiter des journées ensoleillées.

En RDC vous retrouverez l'équivalent d'un T3 avec garage et accès direct au jardin

À l'étage, une équivalent T4 avec grand salon et une terrasse surplombant le jardin

Aucun vis à vis,
Travaux de remise au goût du jour à prévoir sur cette maison de 1987 (salle d'eau, peinture, électricité légère, piscine, rafraîchissement global)
Structure saine

Située à Vitrolles sud allée des diligences, cette maison bénéficie d'un emplacement pratique à proximité de plusieurs espaces verts tels que les Ateliers de la Biodiversité, à 700 mètres, et les Jardins de Kiffa, à 740 mètres. Pour les familles, le Lycée Polyvalent Jean Monnet se trouve également à seulement 774 mètres, offrant ainsi un cadre de vie agréable et fonctionnel.

Caractéristiques techniques :
- DPE : C
- Mode de chauffage : Électricité
- Mode de distribution de l'eau : ÉLECTRIQUE STOCKAGE

Les informations sur les risques auxquels ce bien est exposé sont disponibles sur le site Géorisques : (http://www.georisques.gouv.fr/)

Intéressés ? Contactez Zefir pour visiter ce bien.
Voir plus

Référence: c1576acc-e4f4-421f-ab8e-6e6a46
DPE
A
B
C
D
E
F
G
GES
A
B
C
D
E
F
G

Prêt immobilier

Vous souhaitez connaître votre capacité d’emprunt et trouver le meilleur crédit immobilier ?
Réaliser une simulation gratuite

Maison à VITROLLES
Maison à VITROLLES
Maison à VITROLLES
Maison à VITROLLES
Maison à VITROLLES
Maison à VITROLLES
Maison à VITROLLES
Maison à VITROLLES
Maison à VITROLLES
Maison à VITROLLES
Maison à VITROLLES
Maison à VITROLLES
Maison à VITROLLES
Maison à VITROLLES
Maison à VITROLLES
Maison à VITROLLES
Maison à VITROLLES
Maison à VITROLLES
Maison à VITROLLES
Ce site est protégé par reCAPTCHA la Politique de confidentialité et les Conditions d’utilisation de Google s’appliquent.
Obtenir un prêt immobilier au meilleur taux ?

En poursuivant votre navigation sans modifier vos paramètres, vous acceptez l'utilisation de cookies susceptibles de réaliser des statistiques de visite. Cliquez ici pour plus d'informations