Bénéficiez des services de nos partenaires locaux soigneusement sélectionnés
pour vous accompagner dans votre parcours d'achat immobilier

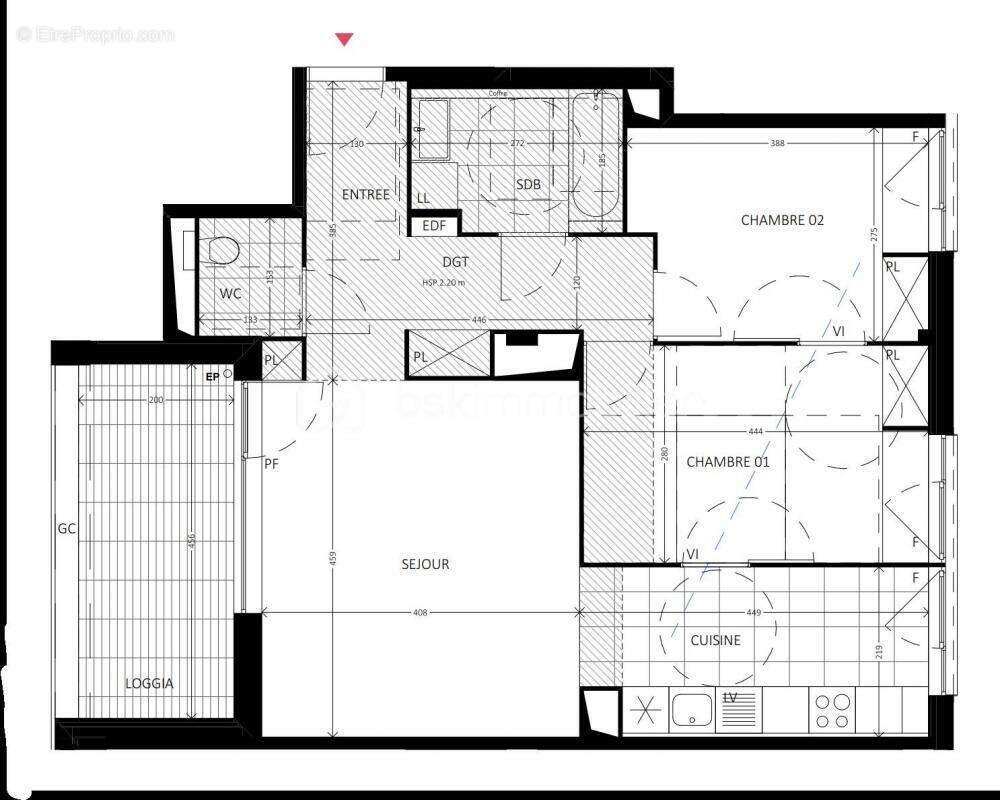
F3 – 67,3 m² – écoquartier des sycomores – terrasse ouest – parking

— Bussy-Saint-Georges 77600 —
304 000 €
67 m²
3 pièces
parkingbalcon/terrasse

Nos partenaires locaux
Découvrez ce magnifique 3 pièces de 67,3 m², situé au 5ᵉ étage de la résidence “DEMAIN” signée Care Promotion, au cœur de l'écoquartier de Bussy-Saint-Georges.
Un cadre de vie moderne et durable : Séjour lumineux avec cuisine ouverte, terrasse de 9,6 m² exposée plein Ouest, 2 chambres confortables, Salle de bains moderne et WC séparés, Parking sécurisé en sous-sol

Les atouts de la résidence :
- Jardins partagés & cuisine collective pour des moments conviviaux
- Espace de coworking de plus de 80 m²
- Conception écoresponsable (matériaux biosourcés, chauffage à air pulsé)

Un bien rare alliant confort, modernité et engagement écologique.
À visiter sans tarder !

Cette annonce référence 307356 vous est présentée par votre agent commercial BSK Immobilier ROSAYA CAZAU (EI) immatriculé au RSAC de NANTEUIL-LES-MEAUX (77100) sous le numéro 88392779000013.

Prix du bien : 304 000,00 €
Les honoraires d'agence sont à la charge du vendeur.

A propos de la copropriété :
Pas de procédure en cours.
Nombre de lots : 2
Charges prévisionnelles annuelles : 2 350,00 €

A propos des performances énergétiques :
Date de réalisation du diagnostic énergétique : 06/03/2025
Score DPE : 63 kWhEP/m²/an
Score GES : 7 kgepCO2/m²/an
Montant estimé des dépenses annuelles d'énergie pour un usage standard : entre 355.00 € et 480.00 € par an. Prix moyens des énergies indexés sur l'année 2023 (abonnements compris).

Les informations sur les risques auxquels ce bien est exposé sont disponibles sur le site Géorisques : www.georisques.gouv.fr
Voir plus

Référence: 307356
Bien en copropriété. Nombre de lots : 2. Charges de copropriété : 195 €.
Honoraires à la charge du vendeur.
DPE
A
B
C
D
E
F
G
GES
A
B
C
D
E
F
G

Prêt immobilier

Vous souhaitez connaître votre capacité d’emprunt et trouver le meilleur crédit immobilier ?
Réaliser une simulation gratuite

Appartement à BUSSY-SAINT-GEORGES
Appartement à BUSSY-SAINT-GEORGES
Appartement à BUSSY-SAINT-GEORGES
Appartement à BUSSY-SAINT-GEORGES
Appartement à BUSSY-SAINT-GEORGES
Appartement à BUSSY-SAINT-GEORGES
Appartement à BUSSY-SAINT-GEORGES
Appartement à BUSSY-SAINT-GEORGES
Appartement à BUSSY-SAINT-GEORGES
Appartement à BUSSY-SAINT-GEORGES
Appartement à BUSSY-SAINT-GEORGES
Appartement à BUSSY-SAINT-GEORGES
Appartement à BUSSY-SAINT-GEORGES
Appartement à BUSSY-SAINT-GEORGES
Appartement à BUSSY-SAINT-GEORGES
Appartement à BUSSY-SAINT-GEORGES
Ce site est protégé par reCAPTCHA la Politique de confidentialité et les Conditions d’utilisation de Google s’appliquent.
Obtenir un prêt immobilier au meilleur taux ?

En poursuivant votre navigation sans modifier vos paramètres, vous acceptez l'utilisation de cookies susceptibles de réaliser des statistiques de visite. Cliquez ici pour plus d'informations