Bénéficiez des services de nos partenaires locaux soigneusement sélectionnés
pour vous accompagner dans votre parcours d'achat immobilier

Dpt gard (30), à vendre saint quentin la poterie belle propriété avec résidence principale, chambres d'hôtes et gîte, piscine, p

— Uzes 30700 —
890 000 €
240 m² / 5 000 m²
10 pièces
balcon/terrassepiscine

Nos partenaires locaux
À Saint-Quentin-la-Poterie, aux portes d'Uzès, découvrez cette charmante propriété d'environ 240 m², nichée dans un parc arboré de plus de 5 000 m². À quelques minutes du village, accessible à pied ou à vélo, elle allie calme, nature et proximité des commerces.

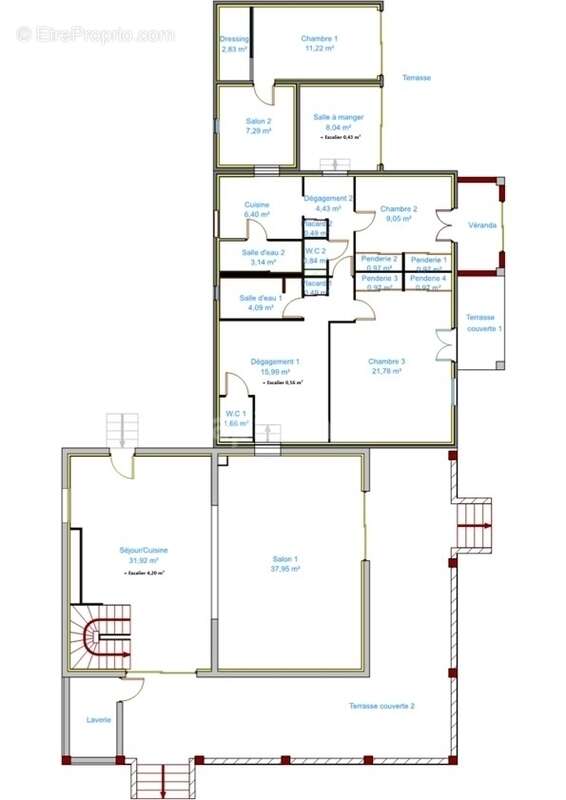
En Rez de jardin, Le cœur de la maison est un vaste espace de vie de 70 m² avec salon/séjour et cuisine ouverte équipée, poêle à bois, s'ouvrant sur une grande terrasse plein sud avec vue sur le parc et la piscine aux dimensions généreuses de 12 x 6 m. Une grande chambre de 24 m2 avec terrasse couverte, une salle d'eau, un bureau de 16 m2, une buanderie et plusieurs rangements complètent ce niveau.



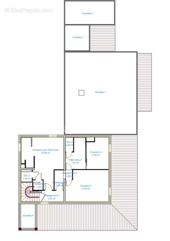
L'étage est dédié à 2 chambres d'hôtes :
 
• une chambre avec salle d'eau et WC séparé.
 
• une suite familiale avec deux chambres, salle d'eau et WC séparé.

La propriété propose également un gîte T3 indépendant et attenant de plein pied, avec cuisine, salon, salle à manger, 2 chambres, salle d'eau, dressing, loggia et terrasse privative.

Le parc comprend également un atelier avec apprenti, une sellerie (chevaux) et un poulailler.

Cette propriété très bien entretenue est idéale pour les amoureux de la nature et du calme. Et pour tous ceux qui ont des animaux de compagnie ou autres (chevaux, …), vous apprécierez pleinement l'espace généreux et l'isolement vis-à-vis du voisinage !

À 5 km d'Uzès, 40 minutes d'Avignon-Nîmes TGV, 30 minutes de l'A9 et une heure des plages.

Pour toute question ou pour organiser une visite, contactez-moi ! Les honoraires sont à la charge du vendeur.
Les informations sur les risques auxquels ce bien est exposé sont disponibles sur le site Géorisques : www. georisques. gouv. fr.

Réseau Immobilier CAPIFRANCE - Votre agent commercial (RSAC N°424 195 055 - Greffe de NIMES) Loïc BOULOGNE Entrepreneur Individuel [Coordonnées masquées] - Réf.929129
Voir plus

Référence: 340932466473
Honoraires à la charge du vendeur.
DPE
A
B
C
D
E
F
G
GES
A
B
C
D
E
F
G

Prêt immobilier

Vous souhaitez connaître votre capacité d’emprunt et trouver le meilleur crédit immobilier ?
Réaliser une simulation gratuite

Maison à UZES
Maison à UZES
Maison à UZES
Maison à UZES
Maison à UZES
Maison à UZES
Maison à UZES
Maison à UZES
Maison à UZES
Maison à UZES
Maison à UZES
Maison à UZES
Maison à UZES
Maison à UZES
Maison à UZES
Maison à UZES
Maison à UZES
Maison à UZES
Maison à UZES
Maison à UZES
Maison à UZES
Maison à UZES
Maison à UZES
Maison à UZES
Maison à UZES
Maison à UZES
Maison à UZES
Maison à UZES
Maison à UZES
Maison à UZES
Maison à UZES
Maison à UZES
Maison à UZES
Maison à UZES
Maison à UZES
Maison à UZES
Maison à UZES
Maison à UZES
Maison à UZES
Maison à UZES
Maison à UZES
Maison à UZES
Maison à UZES
Maison à UZES
Maison à UZES
Maison à UZES
Ce site est protégé par reCAPTCHA la Politique de confidentialité et les Conditions d’utilisation de Google s’appliquent.
Obtenir un prêt immobilier au meilleur taux ?

En poursuivant votre navigation sans modifier vos paramètres, vous acceptez l'utilisation de cookies susceptibles de réaliser des statistiques de visite. Cliquez ici pour plus d'informations