Bénéficiez des services de nos partenaires locaux soigneusement sélectionnés
pour vous accompagner dans votre parcours d'achat immobilier

En exclusivité – villa t4 de 126 m² avec piscine et vue panoramique – allauch (les côtes rôties - logis neuf)

— Allauch 13190 —
475 000 €
126 m² / 614 m²
4 pièces
parkingbalcon/terrassejardinpiscine

Nos partenaires locaux
En exclusivité – Villa T4 de 126 m² avec piscine et vue panoramique – Allauch (Les Côtes Rôties - Logis Neuf)

Par Laëtitia JULLIEN – Conseillère immobilière spécialisée sur Allauch et ses environs

Située dans un environnement résidentiel prisé, au calme d'une impasse du lotissement Les Côtes Rôties, cette villa T4 de 1980 en R+1 offre un cadre de vie agréable, une vue exceptionnelle et un agencement fonctionnel, exposée plein Sud.

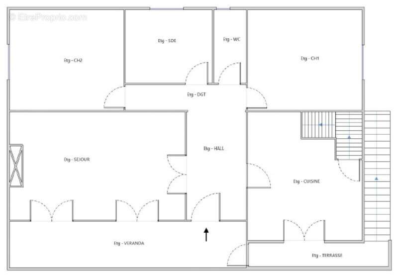
Une maison pensée pour vivre à l'étage

L'espace principal se situe au 1er étage, afin de profiter pleinement de la position dominante et de la vue dégagée panoramique sur les collines, Allauch, Marseille et Notre-Dame-de-la-Garde.
On y accède soit par un escalier extérieur, soit depuis le garage par un accès intérieur.

Cet étage comprend :
- Une entrée par véranda, baignée de lumière
- Un séjour convivial avec cheminée (21 m²)
- Une cuisine spacieuse (12 m²) avec communication directe vers le rez-de-jardin
- Deux chambres confortables de 12,73 m² et 12,10 m²
- Une salle d'eau et des toilettes indépendantes

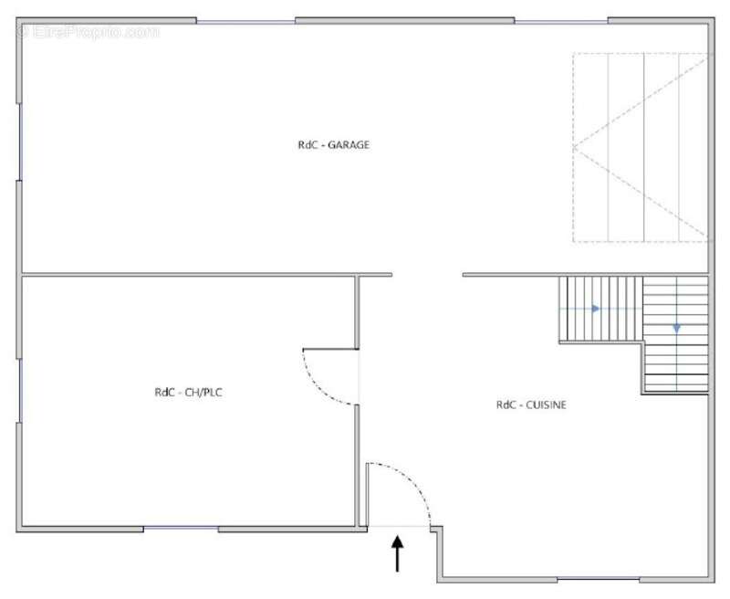
Espace secondaire en rez-de-jardin (hauteur sous plafond de 1,98 m)
Cet étage complémentaire offre de belles possibilités d'aménagement :
- Une grande pièce qui donne accès à la piscine et au garage
- Une chambre indépendante de 21,55 m², idéale pour un bureau ou un espace invités
- Un garage fermé de 37 m²

Deux stationnements extérieurs sur la parcelle

Deux accès distincts assurent une circulation fluide et fonctionnelle dans la maison.

Extérieurs et prestations:
- Piscine en dur (3,5 x 8 m) au chlore, exposée plein sud, sans vis-à-vis
- Terrain plat de 614 m², arboré de fruitiers
- Vue panoramique remarquable et environnement calme
À noter : le terrain comporte deux servitudes d'accès permettant de desservir deux terrains à bâtir attenants.

Un cadre de vie recherché:
Tous les commerces, écoles, services et transports en commun sont accessibles à pied. Le secteur des Côtes Rôties est particulièrement apprécié pour sa tranquillité, sa sécurité et sa proximité avec la nature et le Parc départemental de Pichaury.

Un bien rare sur le secteur, à découvrir sans attendre.
Visite virtuelle disponible sur demande.

Taxe foncière: 2701€
Charges à prévoir de 180€ par an concernant l'entretien du lotissement géré par une ASL.

Les honoraires sont à la charge du vendeur.
Les informations sur les risques auxquels ce bien est exposé sont disponibles sur le site Géorisques : www. georisques. gouv. fr.

Réseau Immobilier CAPIFRANCE - Votre agent commercial (RSAC N°902 968 270 - Greffe de MARSEILLE) Laëtitia JULLIEN Entrepreneur Individuel à Responsabilité Limitée [Coordonnées masquées] - Réf.926069
Voir plus

Référence: 340934974234
Honoraires à la charge du vendeur.
DPE
A
B
C
D
E
F
G
GES
A
B
C
D
E
F
G

Prêt immobilier

Vous souhaitez connaître votre capacité d’emprunt et trouver le meilleur crédit immobilier ?
Réaliser une simulation gratuite

Maison à ALLAUCH
Maison à ALLAUCH
Maison à ALLAUCH
Maison à ALLAUCH
Maison à ALLAUCH
Maison à ALLAUCH
Maison à ALLAUCH
Maison à ALLAUCH
Maison à ALLAUCH
Maison à ALLAUCH
Maison à ALLAUCH
Maison à ALLAUCH
Maison à ALLAUCH
Maison à ALLAUCH
Maison à ALLAUCH
Maison à ALLAUCH
Maison à ALLAUCH
Maison à ALLAUCH
Maison à ALLAUCH
Maison à ALLAUCH
Maison à ALLAUCH
Maison à ALLAUCH
Maison à ALLAUCH
Maison à ALLAUCH
Maison à ALLAUCH
Maison à ALLAUCH
Maison à ALLAUCH
Maison à ALLAUCH
Maison à ALLAUCH
Maison à ALLAUCH
Maison à ALLAUCH
Maison à ALLAUCH
Ce site est protégé par reCAPTCHA la Politique de confidentialité et les Conditions d’utilisation de Google s’appliquent.
Obtenir un prêt immobilier au meilleur taux ?

En poursuivant votre navigation sans modifier vos paramètres, vous acceptez l'utilisation de cookies susceptibles de réaliser des statistiques de visite. Cliquez ici pour plus d'informations