Bénéficiez des services de nos partenaires locaux soigneusement sélectionnés
pour vous accompagner dans votre parcours d'achat immobilier

Appartement

— Lyon-6e 69006 —
1 490 000 €
222 m²
5 pièces
ascenseur

Nos partenaires locaux
Appartement de Prestige – 69006 / Rue de Sèze -T5 – 222 m² – Étage élevé – Charme de l'ancien -Sur son terrain – Rénové en 2023 – Climatisation - Deux caves

Sofia du réseau Efficity Immobilier vous présente, Rue de Sèze, au cœur du très prisé 6ème arrondissement de Lyon, cet appartement familial d'exception de 222 m², alliant élégance et confort.
Situé au 3ᵉ étage d'un immeuble du XIXᵉ siècle sur son terrain, avec ascenseur sur palier, ce bien traversant se distingue par ses volumes généreux..
Entièrement repensé et rénové en 2023 par un architecte d'intérieur, il conjugue le charme de l'ancien (parquets, moulures, cheminées) avec des prestations contemporaines haut de gamme.

Disposition et caractéristiques principales
- Belle entrée de 27 m² avec dressing
- Pièce de réception parquetée de 44 m² avec deux cheminées
- Cuisine équipée haut de gamme de 17 m² avec coin repas, idéale pour la vie de famille
- Suite parentale de 38 m² lumineuse avec salle d'eau et dressing
- Suite de 26 m² avec dressing et salle d'eau
- Suite junior de 23 m² avec dressing, côté cour
- une salle d'eau séparée
- Chambre ou bureau de 15 m² avec rangements
- Espace buanderie indépendant
- Deux toilettes séparées
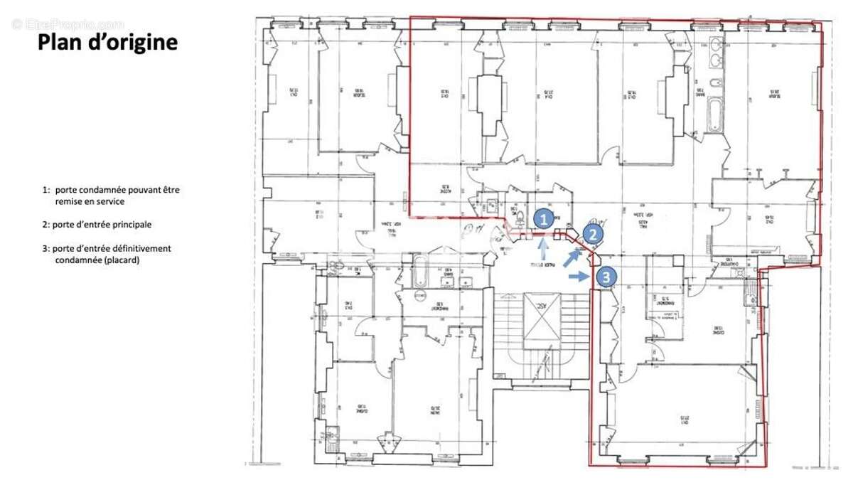
- 1ᵉʳ accès : porte d'entrée principale
- 2ᵉ accès : porte d'entrée condamnée pouvant être remise en service
- Deux caves
Les atouts
- Emplacement d'exception, à proximité immédiate de toutes les commodités
- Petite copropriété sécurisée
- Faibles charges de copropriété
- Climatisation
- DPE : C
- Décoration signée Claude Cartier
- Immeuble sur son terrain
- Visite virtuelle sur demande
Un bien rare sur le marché lyonnais, alliant raffinement, confort et adresse prestigieuse.
Contactez Sofia – Efficity Immobilier dès aujourd'hui pour plus d'informations ou pour organiser une visite.
Les informations sur les risques auxquels ce bien est exposé sont disponibles sur le site Georisque : georisques. gouv. fr
Sofia Mekhnache - EI - est Agent Commercial mandataire en immobilier, immatriculé au Registre Spécial des Agents Commerciaux du Tribunal de Commerce de Lyon 2e Arrondissement sous le n°920917291.
Siège social du mandant : effiCity, 48 avenue de Villiers - 75017 PARIS - Société par Actions Simplifiée, société au capital de 132 373,05 euros, immatriculée au RCS Paris 497 617 746 et titulaire de la Carte professionnelle CPI 75[Coordonnées masquées]02 025 - CCI Paris IDF - Caisse de Garantie : GALIAN Assurances 89 rue de la Boétie 75008 Paris
Voir plus

Référence: 198369
Bien en copropriété. Nombre de lots : 12. Charges de copropriété : 183 €.
Honoraires à la charge du vendeur.
Barème des honoraires
DPE
A
B
C
D
E
F
G
GES
A
B
C
D
E
F
G

Prêt immobilier

Vous souhaitez connaître votre capacité d’emprunt et trouver le meilleur crédit immobilier ?
Réaliser une simulation gratuite

Appartement à LYON-6E
Appartement à LYON-6E
Appartement à LYON-6E
Appartement à LYON-6E
Appartement à LYON-6E
Appartement à LYON-6E
Appartement à LYON-6E
Appartement à LYON-6E
Appartement à LYON-6E
Appartement à LYON-6E
Appartement à LYON-6E
Appartement à LYON-6E
Appartement à LYON-6E
Appartement à LYON-6E
Appartement à LYON-6E
Appartement à LYON-6E
Appartement à LYON-6E
Ce site est protégé par reCAPTCHA la Politique de confidentialité et les Conditions d’utilisation de Google s’appliquent.
Obtenir un prêt immobilier au meilleur taux ?

En poursuivant votre navigation sans modifier vos paramètres, vous acceptez l'utilisation de cookies susceptibles de réaliser des statistiques de visite. Cliquez ici pour plus d'informations