Bénéficiez des services de nos partenaires locaux soigneusement sélectionnés
pour vous accompagner dans votre parcours d'achat immobilier

Nimes planette vaste villa avec terrain et piscine

— Nimes 30000 —
490 000 €
140 m² / 1 081 m²
5 pièces
balcon/terrassejardinpiscine

Nos partenaires locaux
NIMES PLANETTE

Située dans le quartier très prisé de La Planette à Nîmes, venez découvrir cette belle villa d'une surface habitable de 137 m2 qui séduira par son cadre verdoyant, son environnement résidentiel recherché, située à proximité des écoles, des transports et des commodités, à quelques minutes du centre-ville.

Édifiée sur un terrain arboré de 1 080 m2, elle offre de beaux espaces extérieurs comprenant une piscine, avec terrasse, pool house et un abri voitures.

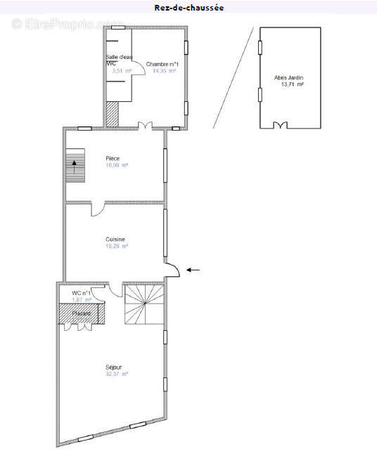
Elle est composée, au rez-de-chaussée, d'une grande cuisine avec coin repas qui s’ouvre d’un côté sur un séjour lumineux, et de l’autre sur une pièce polyvalente pouvant servir de salle à manger ou de bureau, une buanderie, un WC indépendant et une suite parentale avec salle d’eau et placard, le tout ouvert sur le jardin. Idéale pour une vie de plain-pied.
À l’étage, l'espace nuit comprend deux chambres, une salle d’eau, WC et une troisième chambre dispose de sa propre salle de bains.

Cette maison séduira les familles en quête d’un cadre paisible et lumineux, offrant le calme de la campagne à deux pas du centre-ville de Nîmes, dans un environnement naturel privilégié.

Honoraires charge vendeur - Les informations sur les risques auxquels ce bien est exposé sont disponibles sur le site Géorisques : www.géorisques.gouv.fr
Voir plus

Référence: 2512
Honoraires à la charge du vendeur.
Barème des honoraires
DPE
A
B
C
D
E
F
G
GES
A
B
C
D
E
F
G

Prêt immobilier

Vous souhaitez connaître votre capacité d’emprunt et trouver le meilleur crédit immobilier ?
Réaliser une simulation gratuite

Maison à NIMES
Maison à NIMES
Maison à NIMES
Maison à NIMES
Maison à NIMES
Maison à NIMES
Maison à NIMES
Maison à NIMES
Maison à NIMES
Maison à NIMES
Maison à NIMES
Maison à NIMES
Maison à NIMES
Maison à NIMES
Maison à NIMES
Ce site est protégé par reCAPTCHA la Politique de confidentialité et les Conditions d’utilisation de Google s’appliquent.
Obtenir un prêt immobilier au meilleur taux ?

En poursuivant votre navigation sans modifier vos paramètres, vous acceptez l'utilisation de cookies susceptibles de réaliser des statistiques de visite. Cliquez ici pour plus d'informations