T3 traversant lyon 8ème santy la plaine

— Lyon-8e 69008 —
170 000 €
68 m²
3 pièces
parkingbalcon/terrasse

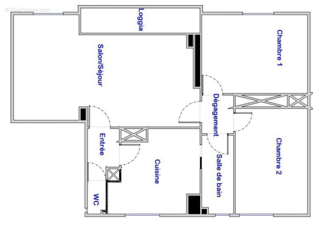
Votre agence GINET Immobilier a le plaisir de vous présenter cet appartement T3, idéalement situé au 1er étage d'une résidence calme et en retrait de la rue.

Nichée dans le secteur de Santy La Plaine, à deux pas de la place Général André et de toutes ses commodités (transports, commerces, écoles?), cette adresse offre un cadre de vie agréable et pratique au quotidien.

L'appartement, traversant et baigné de lumière, se compose d'un séjour ouvrant sur un balcon, d'une cuisine indépendante, de deux chambres, d'une salle d'eau et de toilettes séparées.

Une cave vient compléter ce bien.
La copropriété dispose également d'un stationnement collectif pour plus de confort.

Pour organiser une visite, contactez Antoine Madelrieux au O6 98 30 16 84.
Copropriété de 264 lots - dont 88 lots habitation. (Pas de procédure en cours).

Charges annuelles : 800 euros.
Les informations sur les risques auxquels ce bien est exposé sont disponibles sur le site Géorisques : www. georisques. gouv. fr
Voir plus

Référence: 1693
Bien en copropriété. Nombre de lots : 264. Charges de copropriété : 66 €.
Honoraires à la charge du vendeur.
DPE
A
B
C
D
E
F
G
GES
A
B
C
D
E
F
G

Prêt immobilier

Vous souhaitez connaître votre capacité d’emprunt et trouver le meilleur crédit immobilier ?
Réaliser une simulation gratuite

Appartement à LYON-8E
Appartement à LYON-8E
Appartement à LYON-8E
Appartement à LYON-8E
Appartement à LYON-8E
Appartement à LYON-8E
Appartement à LYON-8E
Appartement à LYON-8E
Appartement à LYON-8E
Ce site est protégé par reCAPTCHA la Politique de confidentialité et les Conditions d’utilisation de Google s’appliquent.
Obtenir un prêt immobilier au meilleur taux ?

En poursuivant votre navigation sans modifier vos paramètres, vous acceptez l'utilisation de cookies susceptibles de réaliser des statistiques de visite. Cliquez ici pour plus d'informations