Bénéficiez des services de nos partenaires locaux soigneusement sélectionnés
pour vous accompagner dans votre parcours d'achat immobilier

En exclusivité barraine immo plouzané ? maison contemporaine ossature bois plain-pied 113 m² avec combles aménageables ref : pz0

— Plouzane 29280 —
420 000 €
113 m² / 591 m²
5 pièces
parkingbalcon/terrassejardin

Nos partenaires locaux
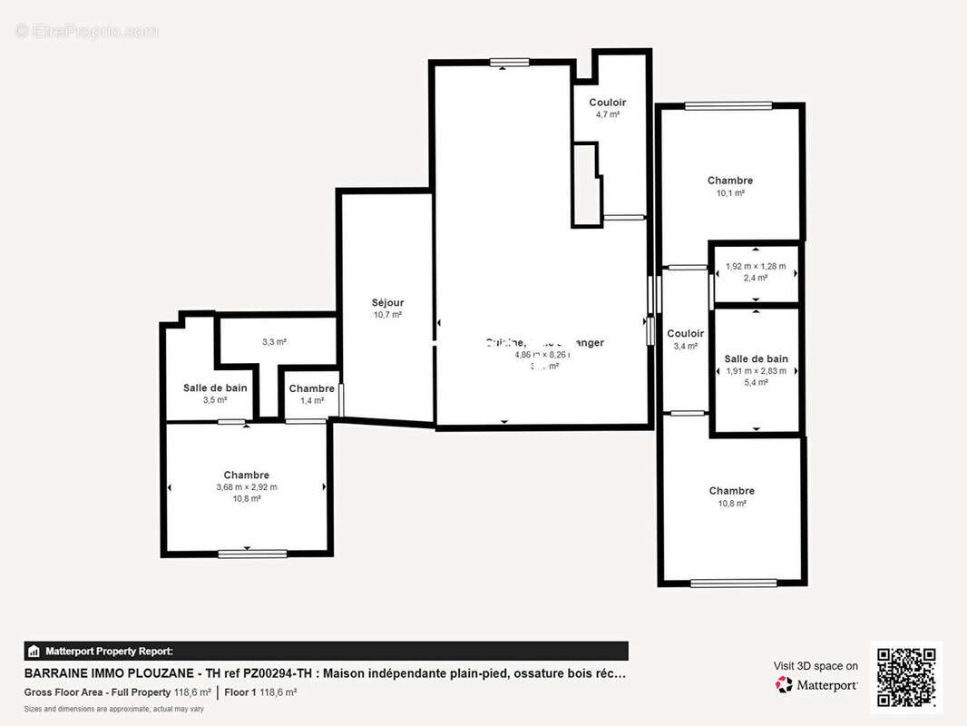
EN EXCLUSIVITÉ BARRAINE IMMO PLOUZANÉ ? MAISON CONTEMPORAINE OSSATURE BOIS PLAIN-PIED 113 M² AVEC COMBLES AMÉNAGEABLES ref : PZ00294-TH Découvrez cette superbe maison contemporaine située à Plouzané, offrant un cadre de vie paisible et recherché. Édifiée en 2019 sur une ossature bois, cette maison de plain-pied allie confort moderne, performance énergétique et qualité de construction. D'une surface habitable de 113 m², elle se compose de 5 pièces, dont 3 chambres spacieuses, ainsi qu'une cuisine américaine aménagée et équipée ouverte sur un séjour lumineux de 45 m² exposé sud-ouest ? un espace convivial idéal pour recevoir famille et amis. Les combles aménageables offrent un potentiel d'agrandissement permettant de créer des pièces supplémentaires et d'augmenter la surface habitable selon vos besoins. Côté technique, la maison respecte les normes de construction passive, garantissant un très faible coût énergétique. Vous profiterez d'un poêle à bois et d'un ballon thermodynamique A l'extérieur, un terrain clos de 591 m² accueille une terrasse bien exposée, un garage fermé, ainsi que des places de stationnement. Les volets roulants électriques et les menuiseries aluminium double vitrage assurent confort et isolation. Idéalement située, la maison se trouve à 1 km des commerces, à 2 minutes des écoles, et à seulement 5 km de la mer. Les atouts : Construction récente en ossature bois (2019) Maison passive ? très faibles charges énergétiques Combles aménageables avec beau potentiel d'évolution Environnement calme et familial Proximité immédiate des écoles et commodités Ne laissez pas passer cette belle opportunité ! ? Contactez dès maintenant l'agence Barraine IMMO de Plouzané pour plus d'informations ou pour organiser une visite. (5.00 % honoraires TTC à la charge de l'acquéreur.)
Voir plus

Référence: PZ00294-TH
Honoraires d'agence de 5% à la charge de l'acquéreur
DPE
A
B
C
D
E
F
G
GES
A
B
C
D
E
F
G

Prêt immobilier

Vous souhaitez connaître votre capacité d’emprunt et trouver le meilleur crédit immobilier ?
Réaliser une simulation gratuite

Maison à PLOUZANE
Maison à PLOUZANE
Maison à PLOUZANE
Maison à PLOUZANE
Maison à PLOUZANE
Maison à PLOUZANE
Maison à PLOUZANE
Maison à PLOUZANE
Maison à PLOUZANE
Maison à PLOUZANE
Maison à PLOUZANE
Maison à PLOUZANE
Maison à PLOUZANE
Maison à PLOUZANE
Maison à PLOUZANE
Maison à PLOUZANE
Maison à PLOUZANE
Maison à PLOUZANE
Maison à PLOUZANE
Maison à PLOUZANE
Ce site est protégé par reCAPTCHA la Politique de confidentialité et les Conditions d’utilisation de Google s’appliquent.
Obtenir un prêt immobilier au meilleur taux ?

En poursuivant votre navigation sans modifier vos paramètres, vous acceptez l'utilisation de cookies susceptibles de réaliser des statistiques de visite. Cliquez ici pour plus d'informations