Bénéficiez des services de nos partenaires locaux soigneusement sélectionnés
pour vous accompagner dans votre parcours d'achat immobilier

Maison 178m² avec terrain de 460m² - crépieux limite caluire

— Caluire-Et-Cuire 69300 —
620 000 €
178 m² / 460 m²
5 pièces
parkingjardin

Nos partenaires locaux
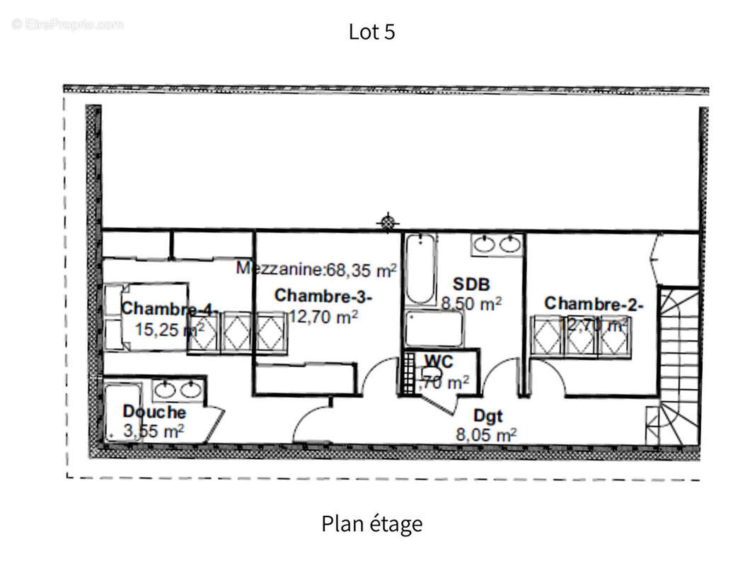
Maison style Loft 5 pièces de 178m² avec terrain piscinable de 460m² au sein d'un domaine de 4000m² idéalement situé sur Crépieux à 150 mètres de Caluire. Située au calme complet dans une ancienne tannerie réhabilitée en 2021, vous serez séduit par ce loft de 178m² vendu sous forme de plateau qui vous offre ainsi de nombreuses possibilités d'aménagements pour un intérieur sur-mesure. Vous trouverez dans l'annonce le plan d'un projet d'aménagement intérieur idéal pour un 5 pièces familiale avec : - Un premier niveau de 110m² composé d'une pièce de vie de 75m² avec cuisine ouverte, une chambre parentale et des WC séparés. - Un second niveau de 68m² composé de 3 chambres de 12 à 15m² dont une avec salle d'eau, une salle de bain, ainsi que des WC séparés. - Un terrain paysagé de 460m² pouvant accueillir une piscine. Les travaux de gros oeuvres ont déjà été réalisés (raccordement au réseau collectif des eaux usées, eaux pluviales, électricité, fibre, etc.) et les menuiseries installées (double vitrage aluminium, Vélux et volets électriques). Cela vous permettra donc de vous concentrer uniquement sur les travaux intérieurs 100% personnalisables. Située sur Crépieux à la limite de Caluire-et-Cuire, dans un quartier résidentiel et à proximité des commodités : - Pharmacie et supérette à 700m. - Ecole primaire à 900m. - Ecole Ombrosa à moins de 5km - Bus C5 (direction Jean Macé), 59 (direction de Cordeliers), et S5 (direction Caluire - Bords de Saône) à 500m. - Accès périphérique autoroute Genève, Paris, Marseille à 3 minutes. Pour plus d'information, prenez contact avec notre consultante Maéva Lhomme, agent commercial immatriculé au RSAC de Lyon sous le numéro 939 314 399. Honoraires d'agence à la charge exclusive du vendeur. Non soumis au DPE. Les informations sur les risques auxquels ce bien est exposé sont disponibles sur le site Géorisques (C. envir., art. R. 125-25, I).
Voir plus

Référence: 1314
Honoraires à la charge du vendeur.
Barème des honoraires

Prêt immobilier

Vous souhaitez connaître votre capacité d’emprunt et trouver le meilleur crédit immobilier ?
Réaliser une simulation gratuite

Maison à CALUIRE-ET-CUIRE
Maison à CALUIRE-ET-CUIRE
Maison à CALUIRE-ET-CUIRE
Maison à CALUIRE-ET-CUIRE
Maison à CALUIRE-ET-CUIRE
Maison à CALUIRE-ET-CUIRE
Maison à CALUIRE-ET-CUIRE
Ce site est protégé par reCAPTCHA la Politique de confidentialité et les Conditions d’utilisation de Google s’appliquent.
Obtenir un prêt immobilier au meilleur taux ?

En poursuivant votre navigation sans modifier vos paramètres, vous acceptez l'utilisation de cookies susceptibles de réaliser des statistiques de visite. Cliquez ici pour plus d'informations